RealtyDepotNY
Cell: 347-219-2037
Fax: 718-896-7020





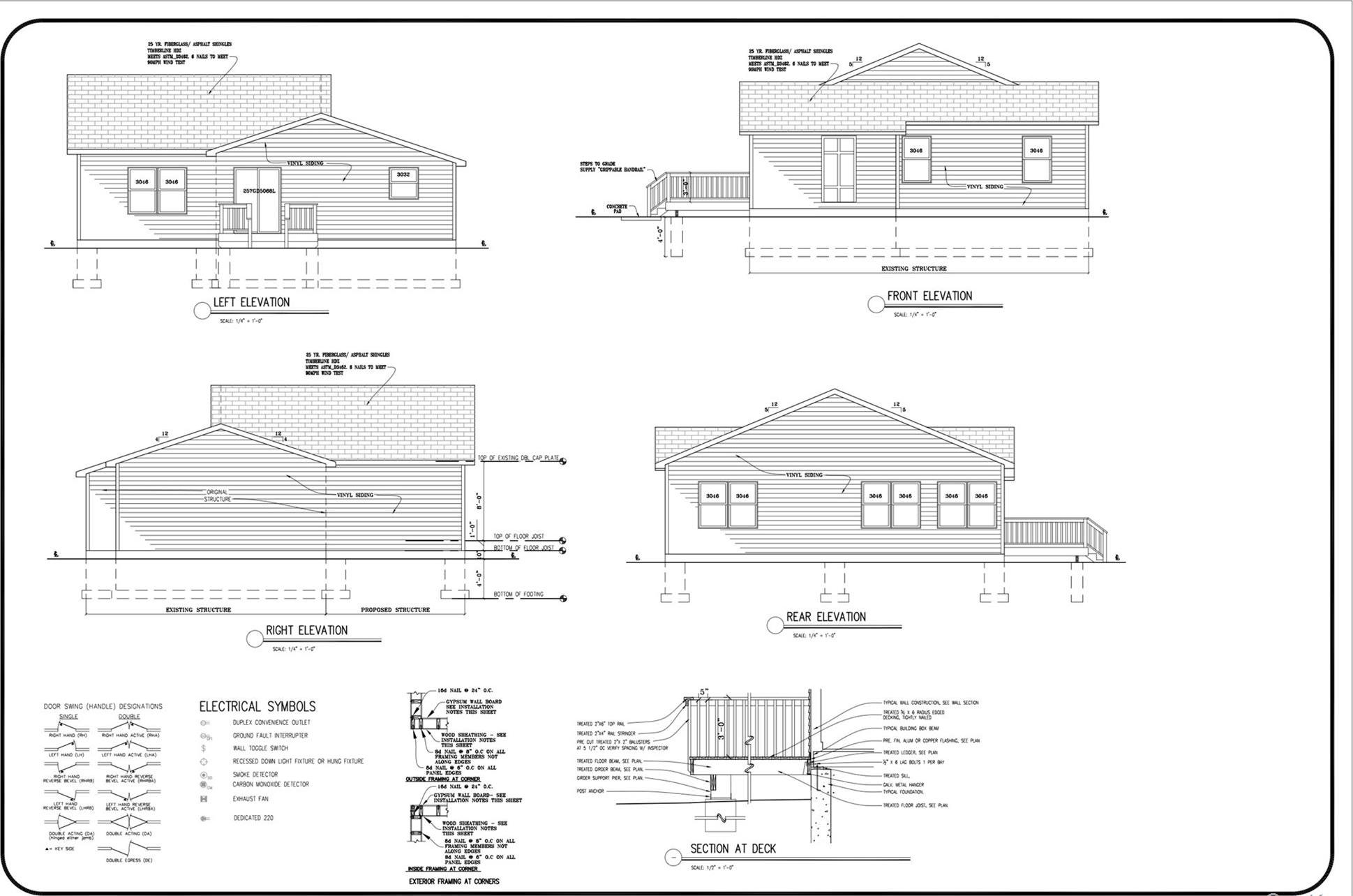
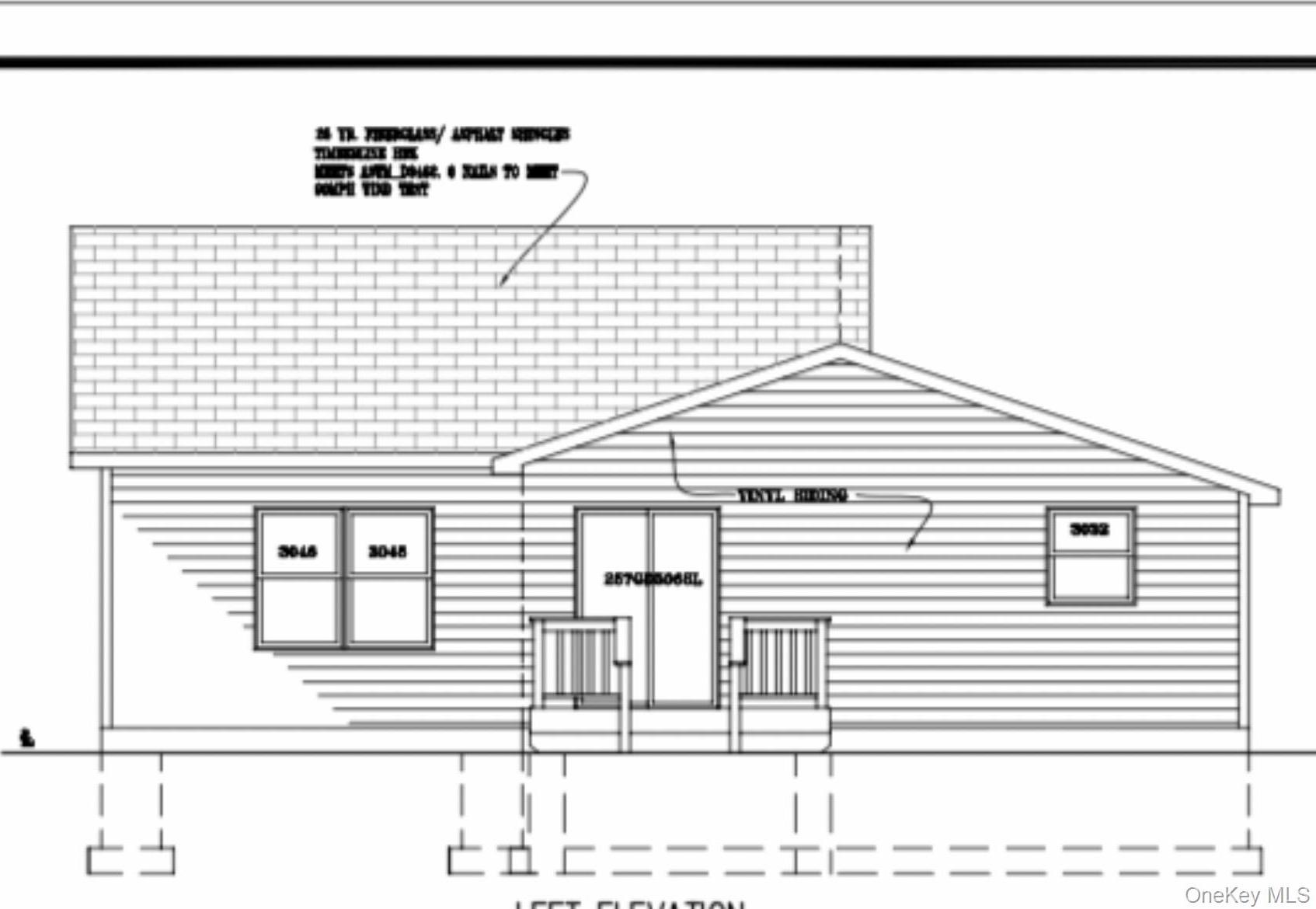
Opportunity Knocks In The Scenic Foothills Of Sullivan County. Set On Quiet And Peaceful Shawanga Lodge Road And Adorned With Mountain Views, This Property Offers A Rare Chance To Bring Your Vision To Life In Existing Structure That’s Already Been Taken Down To The Studs. The Interior Of The Home Has Been Completely Stripped, Creating A True Renovation-ready Blank Canvas With Approved Plans That Extend The Footprint To 1200 Sq Ft. And Make It A True 3 Bed 2 Bath Home. Whether You're Designing A Full-time Residence, Weekend Escape, Or Investment Property, The Heavy Lifting Of Demolition Has Already Been Done - Now It’s Ready For Your Layout, Finishes, And Style. Major Infrastructure Is Already In Place, Including A Functional Well, Septic System, And Electric Service, Giving You A Significant Head Start And Reducing Upfront Costs And Timelines. Architectural And Design Plans Are Available For Interested Buyers, Providing A Streamlined Path Forward For Those Ready To Build. There Is Also An Option To Add Additional Acreage To This Offering. With Nature As Your Backdrop And The Groundwork Already Started, This Is A Rare Opportunity To Create Value And Design Something Truly Your Own In A Peaceful Upstate Setting. The Historic Hamlet Of Bloomingburg Offers Small-town Charm With Everyday Conveniences And Easy Access To Regional Destinations. Just 75 Minutes To The Gwb, And Just 15 Minutes To Middletown Ny Where Access To Nyc (via The Metro North As Well As Greyhound/trailways) Along With A Vibrant Mix Of Shopping, Dining, And Everyday Amenities Awaits. Local Favorites Like Adams Fairacre Farms, Piccolo Cucina E Vino, Equilibrium Brewery, And Legoland Are Just A Few Of The Great Options For The Well-rounded Lifestyle The Area Provides.
| Location/Town | Mamakating |
| Area/County | Sullivan County |
| Post Office/Postal City | Bloomingburg |
| Prop. Type | Single Family House for Sale |
| Style | Modern |
| Tax | $4,306.00 |
| Bedrooms | 3 |
| Total Rooms | 6 |
| Total Baths | 1 |
| Full Baths | 1 |
| Year Built | 1956 |
| Basement | None |
| Construction | Frame |
| Lot SqFt | 20,038 |
| Cooling | None |
| Heat Source | Other |
| Util Incl | Electricity Available |
| Days On Market | 2 |
| Parking Features | Driveway |
| Tax Assessed Value | 67300 |
| School District | Pine Bush |
| Middle School | Circleville Middle School |
| Elementary School | Pine Bush Elementary School |
| High School | Pine Bush Senior High School |
| Features | First floor bedroom |
| Listing information courtesy of: Compass Greater NY, LLC | |