RealtyDepotNY
Cell: 347-219-2037
Fax: 718-896-7020


























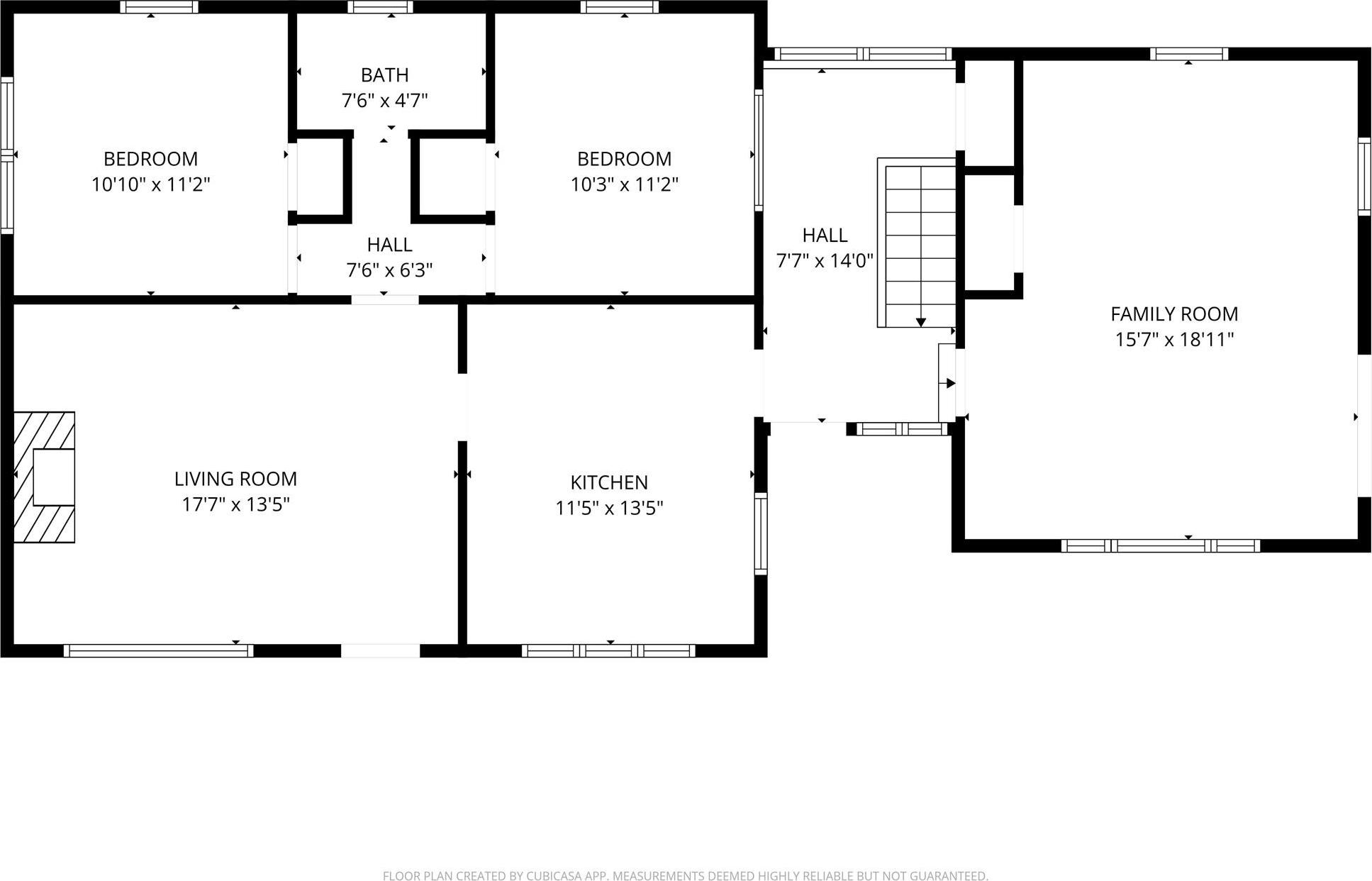
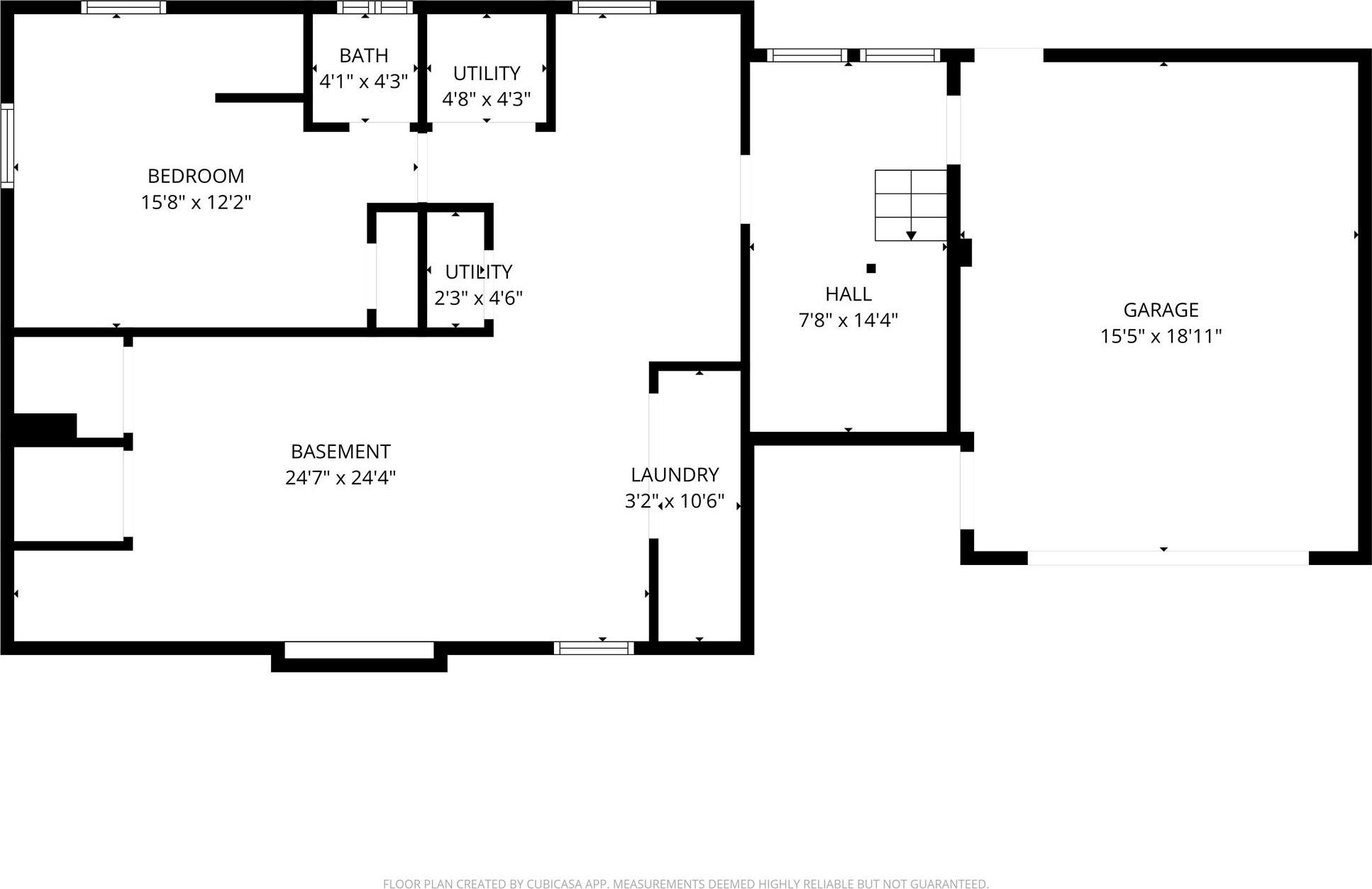
This Solid Ranch Offers Great Potential For The Right Buyer And Is Priced With The Needed Tlc In Mind. A Legal 3-bedroom That Currently Lives Like A 2-bedroom, The Home Features Hardwood Floors Throughout, Natural Gas, And Key Mechanical Updates Including A 4-year-old Boiler Plus A Recently Replaced Water Pump And Holding Tank. The Property Offers Privacy With No Ability To Build Behind The Home, And The Lower Level Is Partially Finished With A 2-car Attached Garage For Added Space And Convenience. Due To The Current Condition Of The Deck This Home May Not Qualify For Fha Financing. Located In The Desirable Brewster Hill Area And Only A 4-minute Drive To The Train Station, This Is An Excellent Opportunity To Restore And Add Instant Value.
| Location/Town | Southeast |
| Area/County | Putnam County |
| Post Office/Postal City | Brewster |
| Prop. Type | Single Family House for Sale |
| Style | Ranch |
| Tax | $7,196.00 |
| Bedrooms | 3 |
| Total Rooms | 9 |
| Total Baths | 2 |
| Full Baths | 1 |
| 3/4 Baths | 1 |
| Year Built | 1954 |
| Basement | Finished, Full, Storage Space, Walk-Out Access |
| Construction | Frame |
| Lot SqFt | 27,000 |
| Cooling | Wall/Window Unit(s) |
| Heat Source | Baseboard |
| Util Incl | Electricity Connected, Natural Gas Connected, See Remarks |
| Features | Lighting |
| Patio | Deck |
| Days On Market | 6 |
| Lot Features | Level, Near Public Transit |
| Parking Features | Attached, Driveway, Garage |
| Tax Assessed Value | 377500 |
| School District | Brewster |
| Middle School | Henry H Wells Middle School |
| Elementary School | John F. Kennedy |
| High School | Brewster High School |
| Features | Beamed ceilings, eat-in kitchen, walk through kitchen |
| Listing information courtesy of: Keller Williams Realty Partner | |