RealtyDepotNY
Cell: 347-219-2037
Fax: 718-896-7020









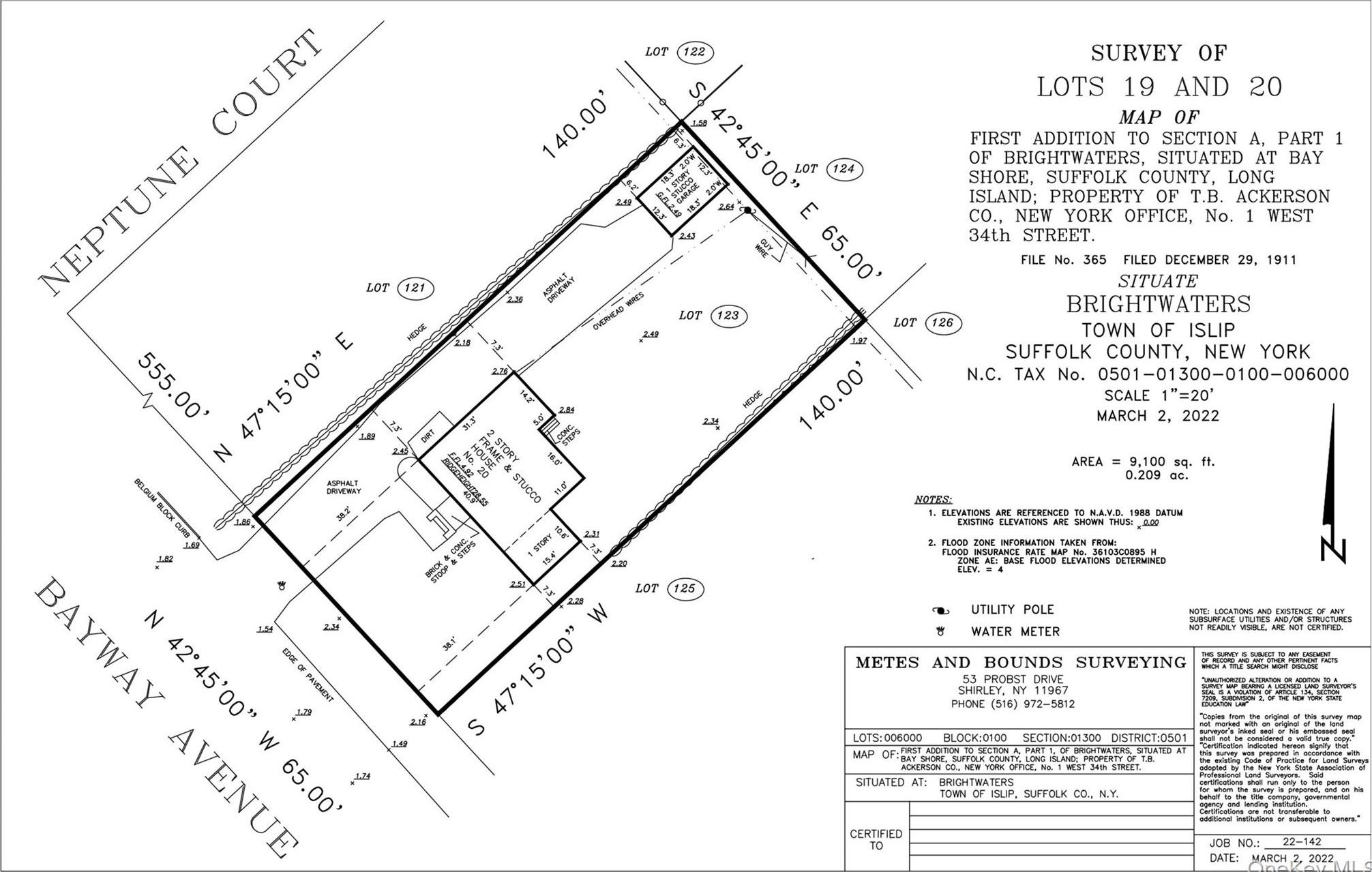
This Is A Land Only Listing. The Plans In The Photos Are My Plans That I Created And Got Approved Through The Village Of Brightwaters 1 Year Ago. You Can Have Them And Build That Same House, Or You Can Create Your Own Build Exactly To Your Specifications. I Have An Architect And A Builder If You Would Like A Referral. I Also Have A Mortgage Lender That Can Finance Your Build If You Are Not Paying Cash. Simply Let Me Know Which You Would Prefer. This Is Undoubtedly The Most Overlooked Property On The Mls Today. If You Plan To Build A 3, 000 Square Foot Home, You Will Have A Few Hundred Thousand In Equity Available To You Immediately. This Literally The Deal Of A Lifetime In The Perfect Location. Good Luck. Thank You For Reading.
| Location/Town | Islip |
| Area/County | Suffolk County |
| Post Office/Postal City | Brightwaters |
| Prop. Type | Single Family House for Sale |
| Style | Colonial, Contemporary, Hi Ranch, Mediterranean, M |
| Tax | $4,128.00 |
| Bedrooms | 4 |
| Total Rooms | 12 |
| Total Baths | 3 |
| Full Baths | 2 |
| 3/4 Baths | 1 |
| Year Built | 2025 |
| Basement | See Remarks, Storage Space, Unfinished |
| Construction | Unknown |
| Cooling | Central Air |
| Heat Source | Natural Gas, Radiant |
| Util Incl | None |
| Condition | New Construction, To Be Built |
| Days On Market | 56 |
| Tax Lot | 006.000 |
| School District | Bay Shore |
| Middle School | Bay Shore Middle School |
| Elementary School | Brook Avenue Elementary School |
| High School | Bay Shore Senior High School |
| Features | First floor bedroom, first floor full bath, eat-in kitchen, entrance foyer, formal dining, high ceilings, his and hers closets, primary bathroom, open floorplan, pantry, storage, walk-in closet(s), washer/dryer hookup |
| Listing information courtesy of: Mint Homes LI LLC | |