Tel: 718-896-0777
Cell: 347-219-2037
Fax: 718-896-7020




















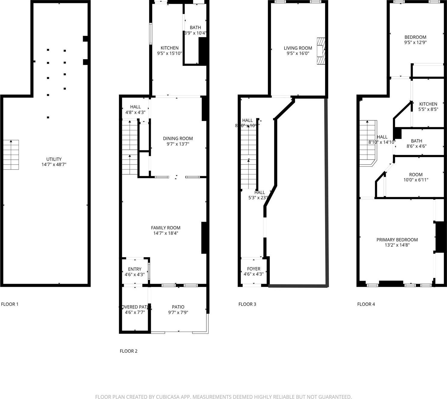
This Brick Semi-attached Two-family Home In Mott Haven Is Ready For Your Vision—rich With Character And History. The Garden And Parlor Levels Offers A Full Kitchen, Two Baths, Flexible Living Spaces, And Access To A Large Private Backyard—an Urban Retreat Waiting To Be Rediscovered. Third Floor Apartment Is A Spacious, Renovated One-bedroom Apartment With A Flex Space. Below, An Unfinished Basement For Storage +. Set Within One Of Nyc’s Fastest-growing Neighborhoods—where Historic Charm Meets Modern Energy—enjoy A Quick Commute To The City, Vibrant Dining, And The Spirit Of Renewal All Around.
| Location/Town | New York |
| Area/County | Bronx |
| Post Office/Postal City | Bronx |
| Prop. Type | Single Family House for Sale |
| Tax | $1,439.00 |
| Year Built | 1910 |
| Basement | Unfinished |
| Construction | Brick |
| Total Units | 2 |
| Lot SqFt | 1,508 |
| Cooling | Wall/Window Unit(s) |
| Heat Source | Oil |
| Util Incl | Cable Connected, Electricity Connected, Natural Gas Connected, Water Connected |
| Days On Market | 14 |
| Parking Features | None |
| Tax Assessed Value | 43560 |
| Units | 2 |
| Features | First floor bedroom |
| Listing information courtesy of: Douglas Elliman Real Estate | |