RealtyDepotNY
Cell: 347-219-2037
Fax: 718-896-7020






































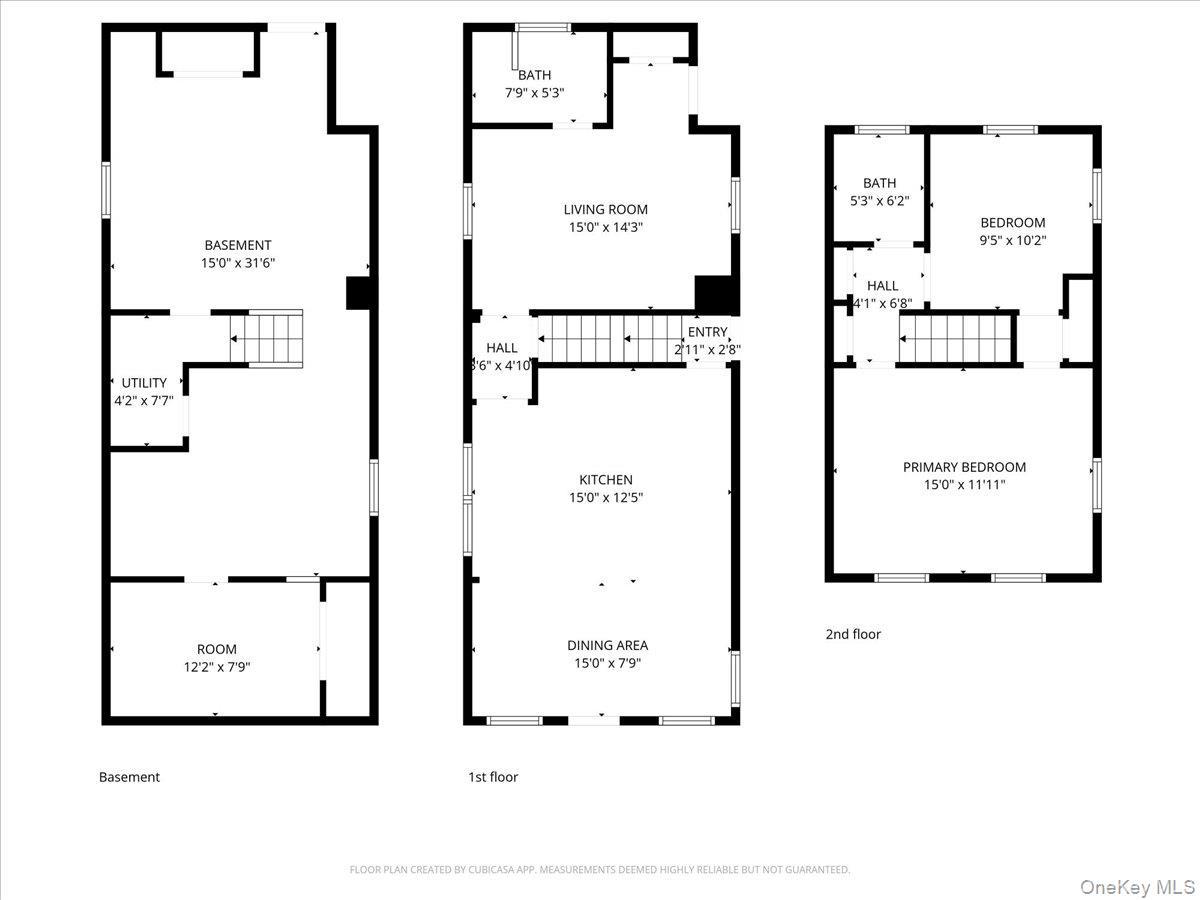
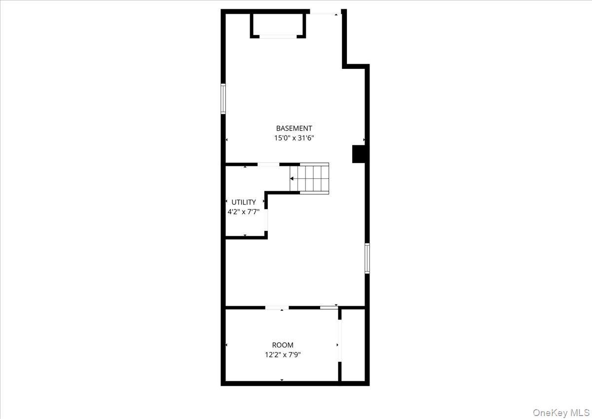
Legal One Dwelling Detached Home In The Bronx Featuring 3 Bedrooms, 2 Full Bathrooms, And A Full Finished Basement. First Floor Offers Open-concept Living With Separate Exterior Access. Second Floor Includes 2 Bedrooms And 1 Bath. Property Includes Shared Driveway, Large Parking Space, Porch, And Extended Balcony. Located In A Great Neighborhood Near The Last Stop Of The 5 Train. This Is A Legal One-dwelling Detached Home Featuring A Shared Driveway With Ample Parking Space And Located In A Quiet, Desirable Neighborhood, The Property Offers A Functional Layout With Multiple Access Points, Including Two Separate Entrances From The First Floor, Providing Flexibility And Convenience, Shared Driveway With Large Parking Capacity, Front Porch, Extended Balcony, Long Terrace Space, Multiple Entry Points For Added Accessibility, Close To Subway Train 5 (last Stop), Excellent For Commuters, Situated In A Well-established Residential Neighborhood, Convenient Access To Shops, Schools And Amenities.
| Location/Town | New York |
| Area/County | Bronx |
| Post Office/Postal City | Bronx |
| Prop. Type | Single Family House for Sale |
| Style | Colonial |
| Tax | $4,529.00 |
| Bedrooms | 3 |
| Total Rooms | 5 |
| Total Baths | 2 |
| Full Baths | 2 |
| Year Built | 1930 |
| Basement | Finished, Full |
| Construction | Frame |
| Lot SqFt | 2,375 |
| Cooling | Wall/Window Unit(s) |
| Heat Source | Steam |
| Util Incl | Natural Gas Connected |
| Days On Market | 4 |
| Parking Features | Driveway |
| Tax Assessed Value | 30540 |
| School District | Contact Agent |
| Middle School | Call Listing Agent |
| Elementary School | Contact Agent |
| High School | Contact Agent |
| Features | Eat-in kitchen |
| Listing information courtesy of: Winzone Realty Inc | |