RealtyDepotNY
Cell: 347-219-2037
Fax: 718-896-7020














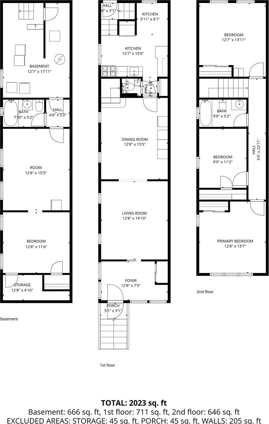
Charming Semi-detached Home Nestled In The Heart Of East Flatbush, Offering A Classic 1930s Colonial Revival–inspired Design With Timeless Appeal. This Well-proportioned Residence Features A Traditional Two-story Layout With Finished Basement. A Functional Interior Layout With Spacious Living And Dining Areas, Complemented By Multiple Bedrooms. The Exterior Features Updated Siding, Set On A Solid Masonry Foundation. Enjoy A Quaint Front Yard With Gated Entry, Adding Both Charm And Privacy. Ideally Located On A Residential Block, This Property Offers Easy Access To Local Shops, Dining, Schools, And Public Transportation. A Wonderful Opportunity To Own A Classic Brooklyn Home With Character, Space, And Potential.
| Location/Town | New York |
| Area/County | Brooklyn |
| Post Office/Postal City | Brooklyn |
| Prop. Type | Single Family House for Sale |
| Style | Colonial |
| Tax | $5,680.00 |
| Bedrooms | 3 |
| Total Rooms | 8 |
| Total Baths | 2 |
| Full Baths | 1 |
| 3/4 Baths | 1 |
| Year Built | 1930 |
| Basement | Finished |
| Construction | Vinyl Siding |
| Lot SqFt | 2,000 |
| Cooling | Wall/Window Unit(s) |
| Heat Source | Steam |
| Util Incl | Electricity Connected, Natural Gas Available, Trash Collection Public, Water Connected |
| Days On Market | 2 |
| Parking Features | Driveway, Garage |
| Tax Assessed Value | 42076 |
| School District | Contact Agent |
| Middle School | Call Listing Agent |
| Elementary School | Contact Agent |
| High School | Contact Agent |
| Features | Crown molding, entrance foyer, formal dining, high ceilings, original details, storage |
| Listing information courtesy of: Keller Williams Realty Group | |