RealtyDepotNY
Cell: 347-219-2037
Fax: 718-896-7020


























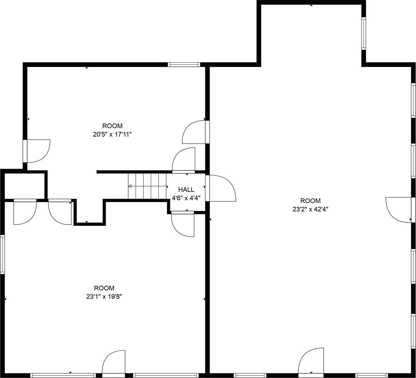
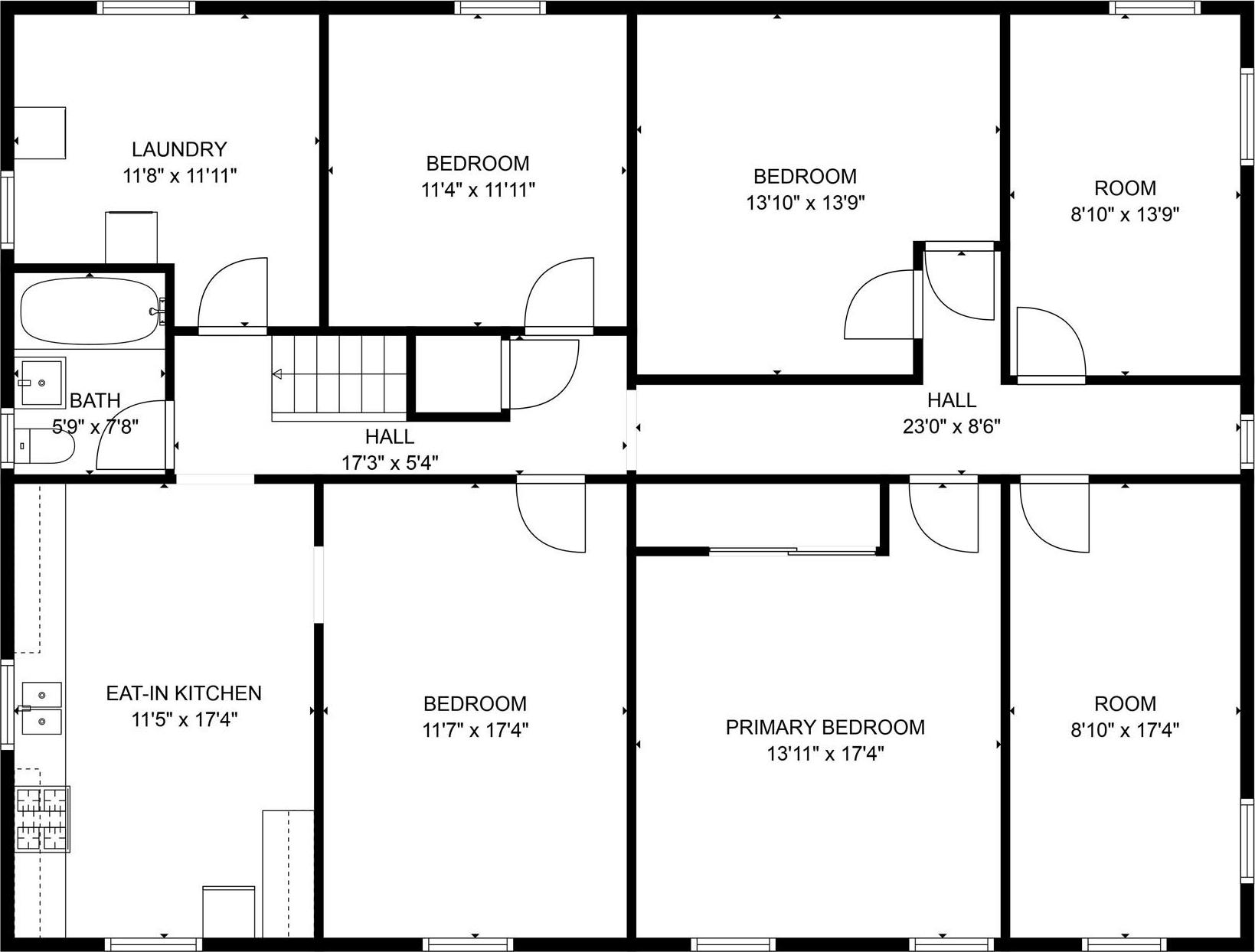
Bring Your Vision To 50 Maple Street, A Generously Sized Home In The Quiet Hamlet Of Cementon Within The Catskills School District. This Property Offers Tons Of Room To Spread Out, With A Flexible Layout Perfect For Those Seeking Space To Create, Work, Or Even Invest. The First Floor You'll Find Expansive Rooms Making It Ideal For Creative Studios, Recreation Areas And Large Living Space. Several Rooms On The Second Floor Can Serve As Bedrooms, Offices, Or Hobby Spaces. This Level Also Features A Large Eat-in Kitchen, Multiple Living Spaces, A Full Bathroom And A Separate Laundry Room. The Home Is In Need Of Updates And Repairs, It Offers Great Potential For The Right Buyer And Was Used As A Studio For An Artist For 40 Years. Whether You're Looking To Renovate For Personal Use Or Create A Live/work Space, This Home Is A Blank Canvas In A Convenient Catskills Location. Just Minutes From The Hudson River And The Villages Of Catskill And Saugerties. Close To Shops, Restaurants And Major Highways. Priced To Sell And Full Of Possibilities - Get Creative With This One! - Cash Or Rehab Loans Only Please !
| Location/Town | Catskill |
| Area/County | Greene County |
| Prop. Type | Single Family House for Sale |
| Style | Other |
| Tax | $2,409.00 |
| Bedrooms | 6 |
| Total Rooms | 13 |
| Total Baths | 2 |
| Full Baths | 2 |
| Year Built | 1930 |
| Basement | Full |
| Construction | Brick, Frame |
| Lot SqFt | 21,780 |
| Cooling | None |
| Heat Source | Hot Water, Oil, Stea |
| Util Incl | Cable Available, Electricity Available |
| Patio | Porch |
| Days On Market | 60 |
| Tax Assessed Value | 45900 |
| School District | Catskill |
| Middle School | Catskill Middle School |
| Elementary School | Catskill Elementary School |
| High School | Catskill Senior High School |
| Features | Other |
| Listing information courtesy of: KW MidHudson | |