RealtyDepotNY
Cell: 347-219-2037
Fax: 718-896-7020






























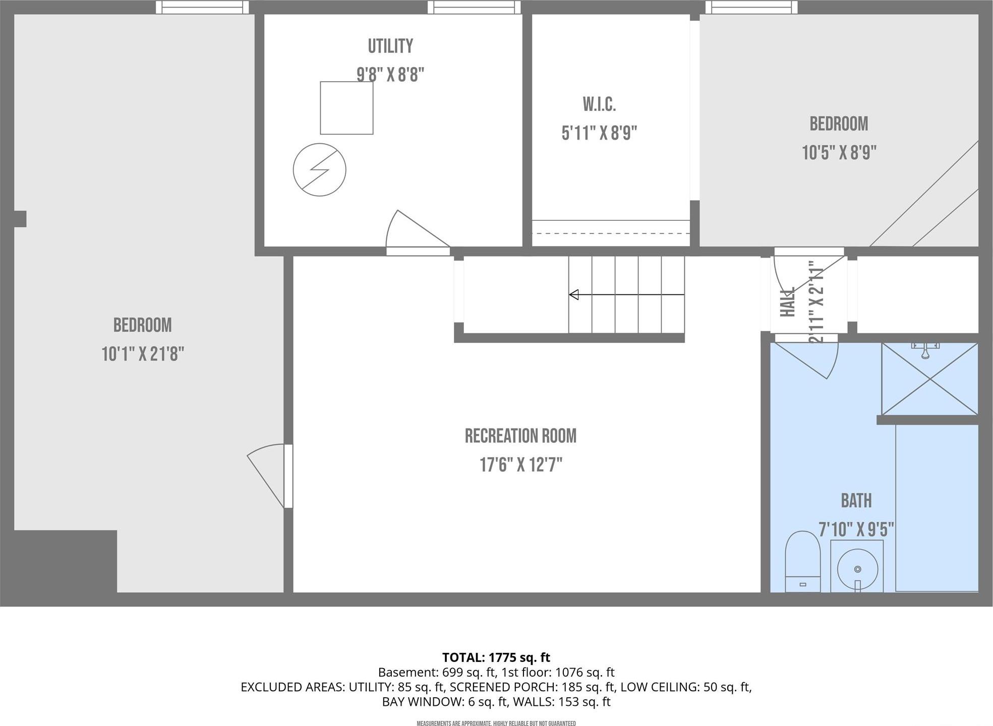
Welcome To This Well-maintained Home Offering Space, Functionality, And An Oversized Backyard Perfect For Everyday Living And Entertaining. Situated On A Generously Sized, Fully Fenced Property, This Home Features A Wide-open Yard With Endless Potential. Ideal For Gatherings, Recreation, Or Future Outdoor Enhancements. Inside, You’ll Find Comfortable Living Spaces Along With Multiple Bedrooms, Including Additional Finished Areas In The Lower Level That Provide Flexibility For Extended Living, Guest Space, Or A Home Office Setup. Be Sure To Review The Floor Plan And Take Note Of The Multiple Bonus Rooms Throughout The Home—offering Incredible Versatility And Options To Fit Your Needs. The Basement Provides Excellent Usable Space With Existing Bedrooms, Storage, And Natural Light, Making It A Valuable Extension Of The Home. Major Updates Add Peace Of Mind, Including A Furnace Replaced In (2025), Gas-fired Hot Water Heater (2024), And Cesspool Replaced In (2021). Whether You’re Looking For Extra Space, A Large Yard, Or Room To Make It Your Own, This Property Presents A Great Opportunity With Solid Potential.
| Location/Town | Islip |
| Area/County | Suffolk County |
| Post Office/Postal City | Central Islip |
| Prop. Type | Single Family House for Sale |
| Style | Ranch |
| Tax | $10,507.00 |
| Bedrooms | 3 |
| Total Rooms | 10 |
| Total Baths | 2 |
| Full Baths | 2 |
| Year Built | 1962 |
| Basement | Finished |
| Construction | Vinyl Siding |
| Lot SqFt | 10,890 |
| Cooling | Central Air |
| Heat Source | Forced Air, Natural |
| Util Incl | Natural Gas Connected |
| Parking Features | Driveway |
| Tax Assessed Value | 31600 |
| School District | Central Islip |
| Middle School | Ralph Reed School |
| Elementary School | Cordello Avenue Elementary Sch |
| High School | Central Islip Senior High Scho |
| Features | Other |
| Listing information courtesy of: Premium Group Realty Corp | |