RealtyDepotNY
Cell: 347-219-2037
Fax: 718-896-7020








































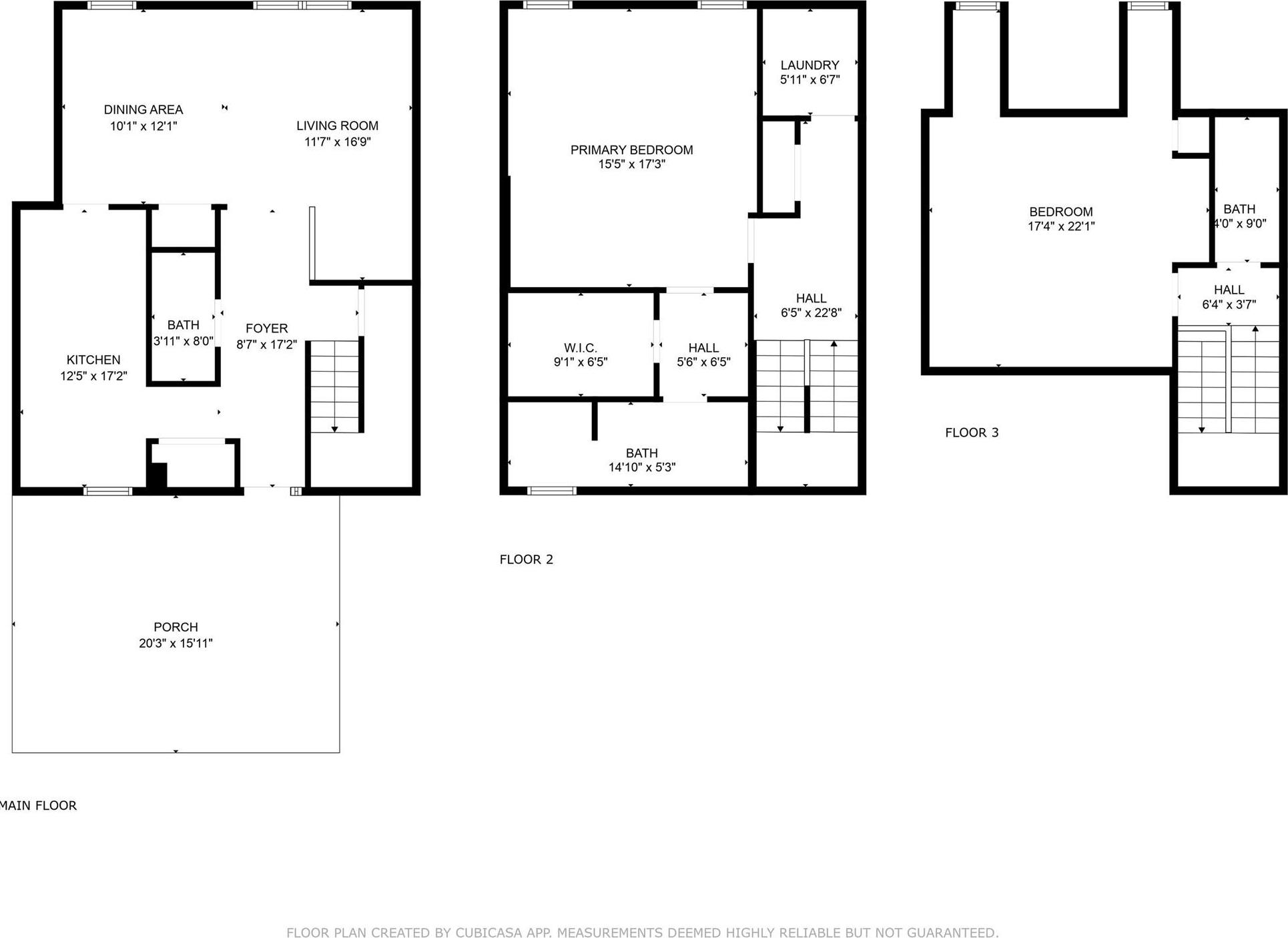
Sophisticated 2-bedroom Townhouse In Historic Valeria — A Refined Retreat Just One Hour From Manhattan Escape The City And Embrace Refined Suburban Living In This Beautifully Updated Tri-level Townhouse, Nestled In The Coveted 500-acre Valeria Community In Cortlandt. Originally Founded In 1924, Valeria Offers A Rare Blend Of History, Nature, And Modern Amenities—all Just An Hour From Manhattan. This Bright, Move-in-ready Home Features Upgraded Flooring, Fresh Paint, And Sun-filled Spaces With Oversized Uv-treated Windows. Two Spacious Bedrooms Include A Versatile Top-floor Retreat With A Murphy Bed—ideal For Guests Or A Home Office. Enjoy Resort-style Amenities Including A Serene Pond, Scenic Hiking Trails, Outdoor Pool, Tennis Courts, And A Newly Renovated Clubhouse With A Fitness Center And Event Space. Perfect As A Weekend Escape Or A Full-time Residence, This Townhouse Offers Timeless Charm, Modern Comfort, And All Within A Peaceful Setting That Includes Heat, Hot Water And Detached Garage. Whether You're Craving Weekend Peace Or A Daily Escape From The City Grind, This Sophisticated Townhouse Offers A Seamless Blend Of Tranquility, Modern Comfort, Convenience, And Offers A Lifestyle City Dwellers Dream Of. Come Experience The Magic Of Valeria—schedule Your Private Tour Today And Discover A Hidden Gem Just Beyond The City Limits.
| Location/Town | Cortlandt |
| Area/County | Westchester County |
| Post Office/Postal City | Cortlandt Manor |
| Prop. Type | Single Family House for Sale |
| Style | Garden |
| Tax | $6,891.00 |
| Bedrooms | 2 |
| Total Rooms | 5 |
| Total Baths | 3 |
| Full Baths | 2 |
| 3/4 Baths | 1 |
| Year Built | 1929 |
| Construction | Stone, Stucco |
| Cooling | Central Air, Wall/Window Unit(s) |
| Heat Source | Baseboard, Oil |
| Util Incl | Cable Available, Trash Collection Public |
| Features | Courtyard |
| Property Amenities | Window blinds, light fixtures, ceiling fan, washer, dryer, range, microwave, dishwasher |
| Pool | Community, |
| Patio | Patio |
| Days On Market | 134 |
| Window Features | Aluminum Frames |
| Community Features | Clubhouse, Curbs, Fitness Center, Park, Pool, Tennis Court(s) |
| Lot Features | Garden, Historic District, Near Golf Course, Near Public Transit, Near School, Near Shops, Stone/Bri |
| Parking Features | Garage, Parking Lot |
| Tax Lot | 25 |
| Association Fee Includes | Cable TV, Common Area Maintenance, Heat, Hot Water, Sewer, Snow Removal, Trash |
| School District | Hendrick Hudson |
| Middle School | Blue Mountain Middle School |
| Elementary School | Furnace Woods Elementary Schoo |
| High School | Hendrick Hudson High School |
| Features | Ceiling fan(s), eat-in kitchen, entrance foyer, galley type kitchen, primary bathroom, natural woodwork, open floorplan, original details, pantry, recessed lighting, walk-in closet(s) |
| Listing information courtesy of: Houlihan Lawrence Inc. | |