RealtyDepotNY
Cell: 347-219-2037
Fax: 718-896-7020
































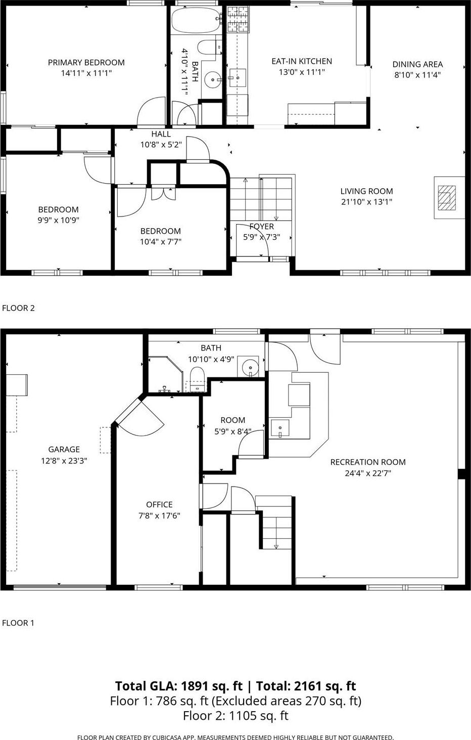
Welcome To This Spacious Hi-ranch Home In Deer Park, Ideally Situated Near The Train Station, Major Highways, And Shopping, Offering Convenient Access To Area Amenities While Maintaining A Peaceful Residential Setting. This Property Features Natural Gas Heating And Central Air Conditioning, With 4 Bedrooms And 2 Full Baths. The Home Offers Generous Living Space Across Two Levels, Including A Spacious Family Room With A Wet Bar And Hardwood Floors Upstairs. Enjoy Outdoor Living With A Bi-level Deck Off The Kitchen, Leading To An Above-ground Saltwater Pool And A Fully Fenced Backyard — Perfect For Relaxing Or Entertaining. This Home Offers A Great Combination Of Comfort, Space, And Location — Schedule Your Showing Today!
| Location/Town | Babylon |
| Area/County | Suffolk County |
| Post Office/Postal City | Deer Park |
| Prop. Type | Single Family House for Sale |
| Style | Hi Ranch |
| Tax | $12,405.00 |
| Bedrooms | 4 |
| Total Rooms | 9 |
| Total Baths | 2 |
| Full Baths | 2 |
| Year Built | 1961 |
| Construction | Brick, Vinyl Siding |
| Lot SqFt | 7,500 |
| Cooling | Central Air |
| Heat Source | Forced Air, Natural |
| Util Incl | Electricity Connected, Natural Gas Connected |
| Pool | Above Grou |
| Patio | Deck, Patio |
| Days On Market | 39 |
| Window Features | Skylight(s) |
| Lot Features | Back Yard, Sprinklers In Front, Sprinklers In Rear |
| Parking Features | Driveway, Garage, Private |
| School District | Deer Park |
| Middle School | Robert Frost Middle School |
| Elementary School | May Moore Primary School |
| High School | Deer Park High School |
| Features | First floor bedroom, ceiling fan(s), eat-in kitchen, formal dining |
| Listing information courtesy of: Signature Premier Properties | |