RealtyDepotNY
Cell: 347-219-2037
Fax: 718-896-7020























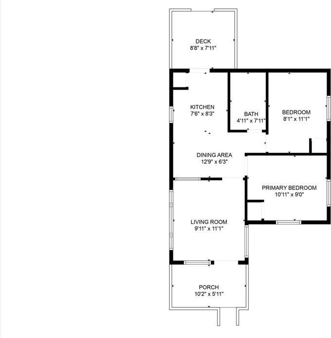
Charming, Updated, And Move In Ready. Your Search For An Affordable Year Round Lake House Ends Here. Welcome To 11 Apache Lane, A Two Bedroom One Bathroom Home In The Laid Back Indian Lake Community, Centered Around A Peaceful Four Acre Spring Fed Lake. This Property Works Well As A Full Time Residence, A Weekend Escape, Or A Profitable Short Term Rental. The Owners Have Completed Valuable Improvements Including A New Roof, Spray Foam Insulation Under The House, A New Water Heater, A New Mini Split System In The Dining Room, New Heating Units In The Bedrooms, Updated Flooring In The Bathroom, Interior Paint, And Freshly Stained Decks. The Home Has Been Well Maintained And Is Ready For Its Next Owner. Inside You Will Find A Comfortable Living Room, An Eat In Kitchen, And Well Sized Bedrooms. The Layout Is Simple And Functional. The Home Can Be Sold Fully Furnished Which Makes For A Convenient Turn Key Purchase. Outdoor Living Is A Highlight With Multiple Spaces To Relax And Enjoy Nature. Spend Time Around The Firepit, Rest In The Hammock, Rinse Off In The Outdoor Shower After Lake Activities, Or Enjoy Backyard Gatherings. There Is Also A Small Shed With Electricity That Has Been Retrofitted For Casual Stargazing. Nearby Outdoor Recreation Includes The Bailey Trail, A Quiet Wooded Walking Path Located Within Minutes Of The Home. Dining Options Are Close By As Well Including The Old Homestead Restaurant In Monticello Which Is Less Than Five Miles Away And Known For Quality Meals And Friendly Service. Indian Lake Is A Friendly And Relaxing Community. Annual Dues Cover Lake Maintenance, Common Area Mowing, And Winter Road Service. The Lake Is Ideal For Catch And Release Fishing, Swimming, And Boating. The Location Provides Convenient Access To Catskills Area Attractions Including Bethel Woods, Resorts World Casino, Kartrite Indoor Waterpark, Golf Courses, And Year Round Outdoor Activities. 11 Apache Lane Offers Affordability, Comfort, And A Peaceful Lifestyle In A Welcoming Lake Community.
| Location/Town | Liberty |
| Area/County | Sullivan County |
| Post Office/Postal City | Ferndale |
| Prop. Type | Single Family House for Sale |
| Style | Cottage |
| Tax | $3,647.00 |
| Bedrooms | 2 |
| Total Rooms | 5 |
| Total Baths | 1 |
| Full Baths | 1 |
| Year Built | 1960 |
| Basement | Crawl Space |
| Construction | Aluminum Siding, Vinyl Siding |
| Lot SqFt | 9,583 |
| Cooling | Ductless, Wall/Window Unit(s) |
| Heat Source | Hot Air, Other |
| Util Incl | Trash Collection Private |
| Days On Market | 20 |
| Parking Features | Driveway |
| Tax Assessed Value | 43200 |
| School District | Liberty |
| Middle School | Liberty Middle School |
| Elementary School | Liberty Elementary School |
| High School | Liberty High School |
| Features | Other |
| Listing information courtesy of: Keller Williams Hudson Valley | |