RealtyDepotNY
Cell: 347-219-2037
Fax: 718-896-7020






































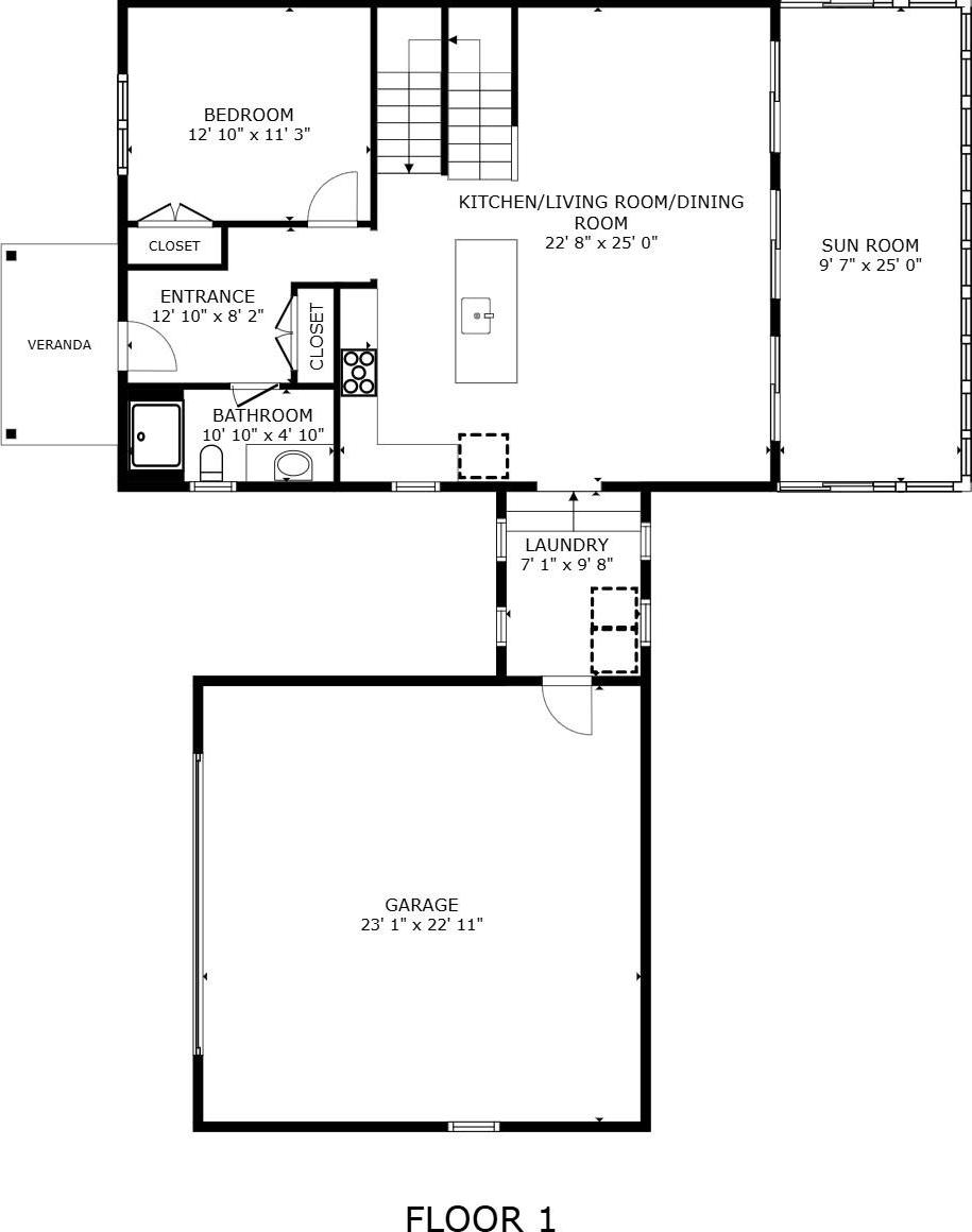
Tucked Within The Serene Hills Of The Countryside, This Distinguished 22-acre Estate Captures The Essence Of Refined Country Living. Completed Just Four Years Ago, The Residence Blends Sophisticated Contemporary Design With The Warmth Of Rustic Charm. Every Detail Was Thoughtfully Curated, Showcasing Exceptional Craftsmanship And Quality Materials Throughout. Expansive Windows And A Seamless Flow Between Indoor And Outdoor Spaces Invite The Beauty Of Nature Into Everyday Life. The Great Room, Framed By Soaring Cathedral Ceilings, Adjoins An Elegant Open Kitchen Designed For Both Comfort And Entertaining. The Home's Three-level Layout Features A Tranquil Loft Suite, A Secondary Kitchenette On The Lower Level, And Beautifully Appointed Living Areas That Embrace Light And Space. A 2, 000± Square Foot Carriage Barn Has Been Newly Enhanced With A Metal Roof, Windows, And Doors, Offering Flexible Use As A Studio, Event Space, Or Collector's Showcase. Two Peaceful Ponds And Sweeping Pastures Complete This Exceptional Landscape, With Ample Room For Gardens, Recreation, Or Equestrian Pursuits. Located Within Easy Reach Of Catskill, Hudson, And Windham Mountain, This Property Offers Privacy Without Sacrificing Access To The Region's Amenities. For Those Seeking An Expanded Estate, The Neighboring Property At 720 Sunny Hill Road, Known As The Hill House, Is Also Available.
| Location/Town | Greenville |
| Area/County | Greene County |
| Prop. Type | Single Family House for Sale |
| Style | Contemporary |
| Tax | $9,181.00 |
| Bedrooms | 2 |
| Total Rooms | 4 |
| Total Baths | 2 |
| Full Baths | 2 |
| Year Built | 2021 |
| Basement | Full, Partially Finished |
| Construction | Stucco |
| Lot SqFt | 965,725 |
| Cooling | Central Air |
| Heat Source | Forced Air, Propane |
| Util Incl | Propane, Underground Utilities |
| Days On Market | 4 |
| Parking Features | Attached, Driveway, Garage |
| Tax Assessed Value | 192000 |
| Tax Lot | 58 |
| School District | Greenville |
| Middle School | Greenville Middle School |
| Elementary School | Scott M Ellis Elementary Schoo |
| High School | Greenville High School |
| Features | Cathedral ceiling(s), ceiling fan(s), eat-in kitchen, high ceilings, kitchen island, open floorplan, recessed lighting |
| Listing information courtesy of: Century 21 New West Properties | |