RealtyDepotNY
Cell: 347-219-2037
Fax: 718-896-7020




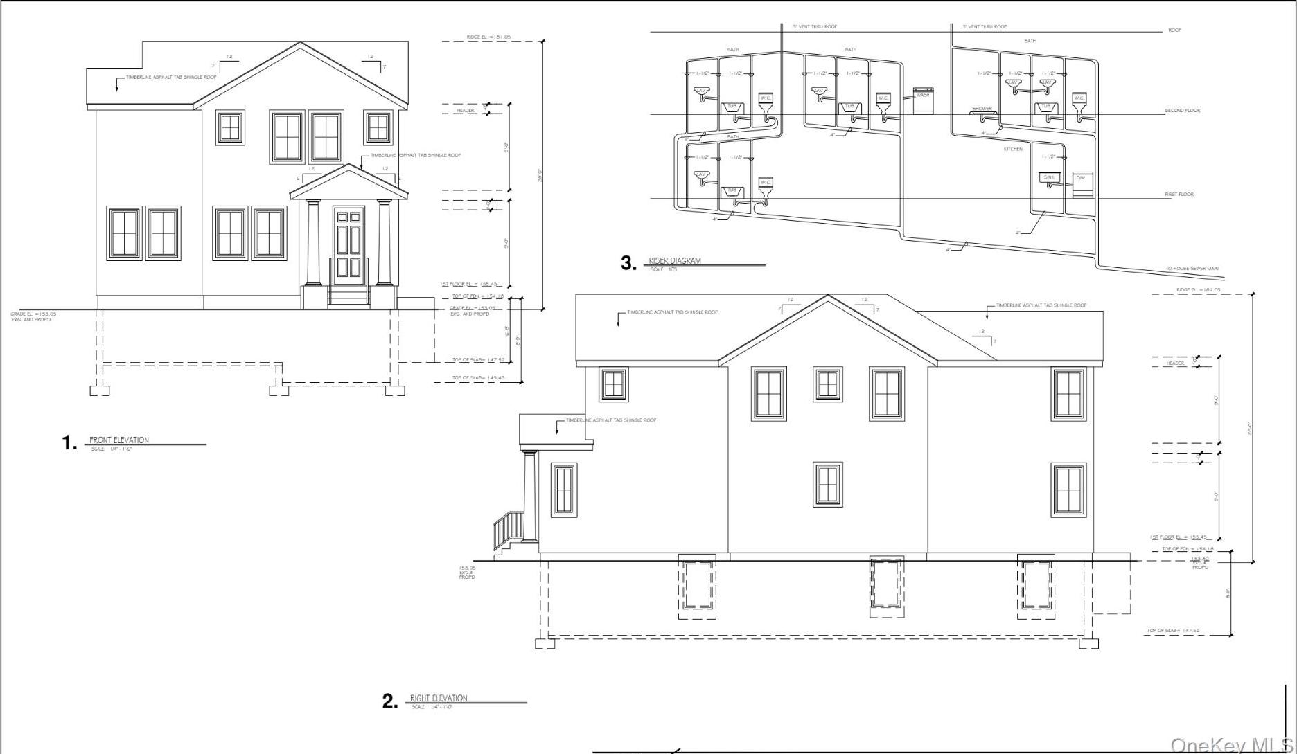
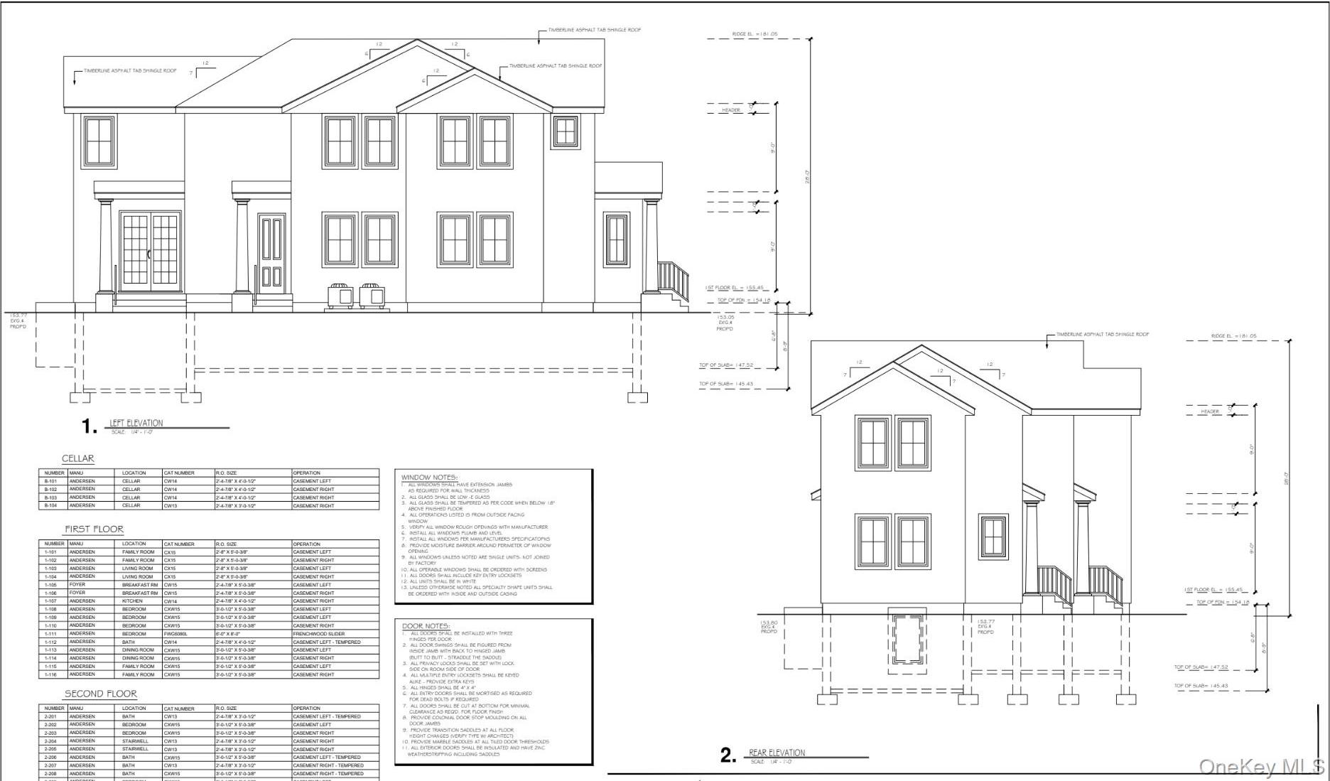
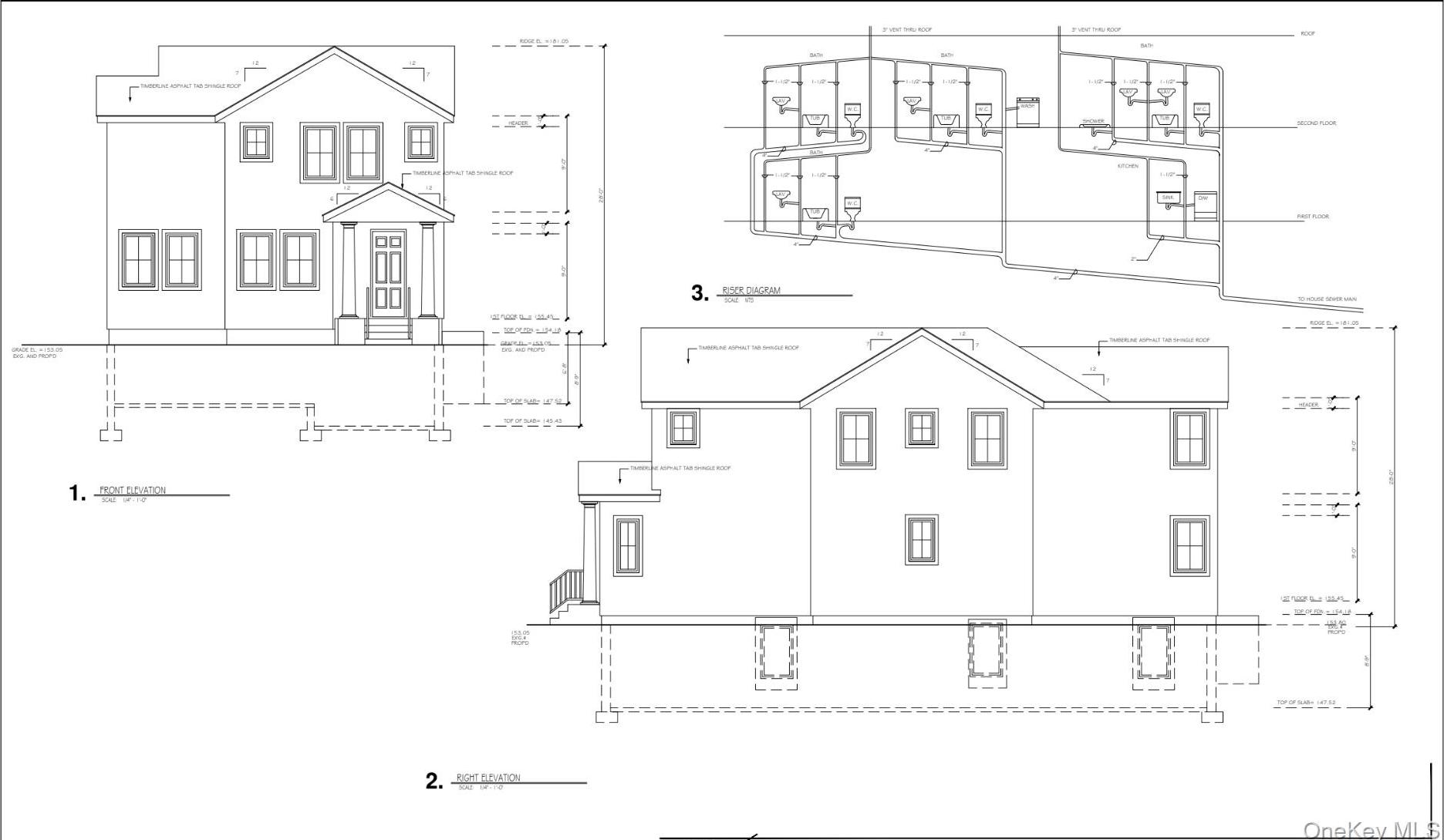
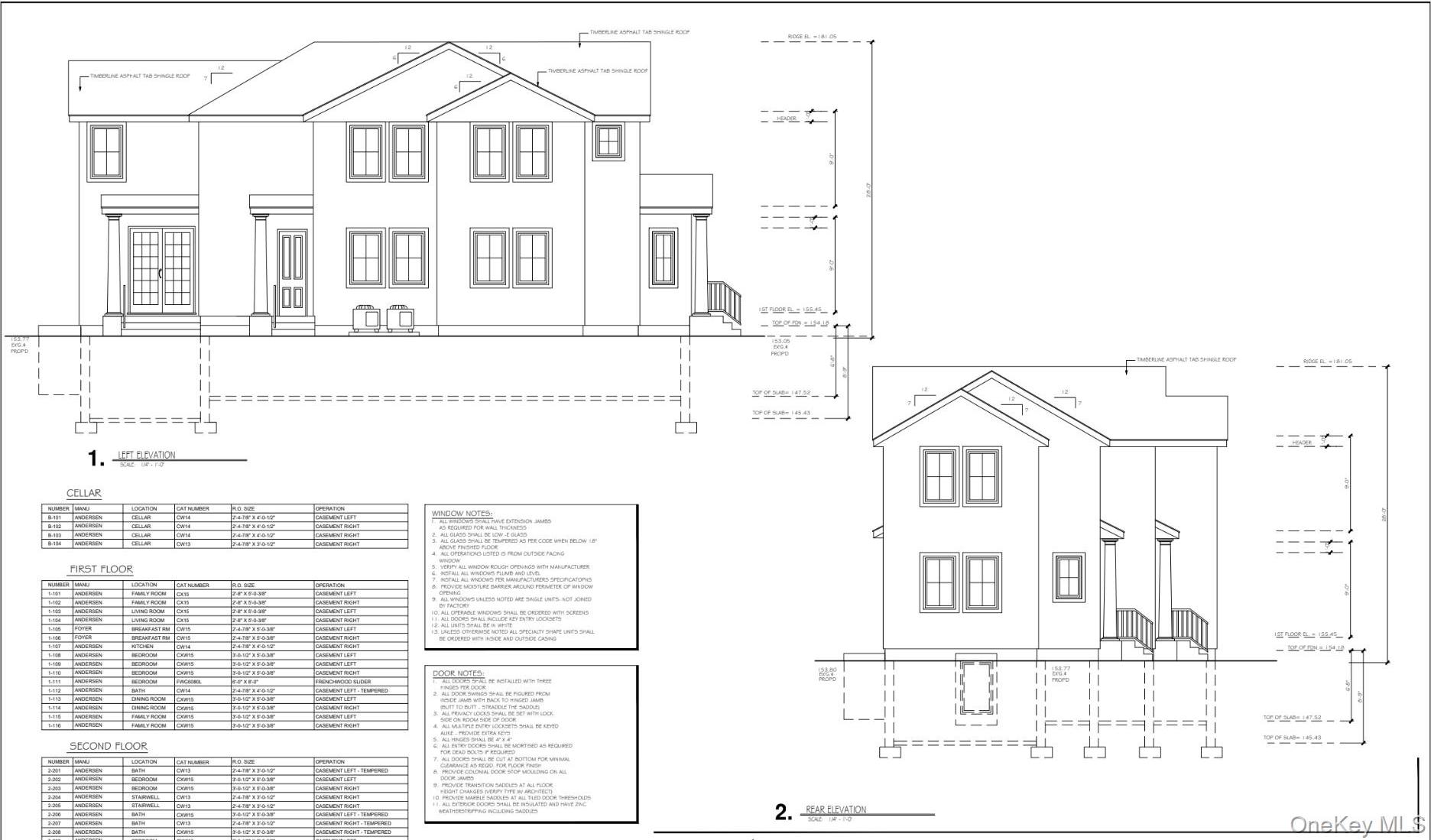
Attention Investors, Developers, And Visionary Buyers — This Is The Opportunity You’ve Been Waiting For! Situated In One Of The Most Sought-after Neighborhoods, This Brand-new Listing Features An Expansive Lot And Fully Approved Architectural Plans For A Stunning ~3, 200 Sq.ft. Home Featuring 5 Spacious Bedrooms And 4 Full Baths. Whether You're Looking To Build Your Dream Home Or Capitalize On A Lucrative Investment, The Groundwork Has Already Been Laid. All Approvals Are In Place — Simply Bring Your Vision And Start Building. The Large Lot Offers Flexibility, Space, And Endless Potential To Customize To Your Taste Or Market Needs. Please Note: The Approved Architectural Plans Reflect A Potential Future Structure — Not The Current Existing Structure On The Property. All Details, Including But Not Limited To Bed/bath Count, Square Footage, And Development Potential, Should Be Confirmed Directly With The Listing Agent. All Cash Offers Only. Don’t Miss Your Chance To Secure This Prime Property With Enormous Upside In A Thriving Location Close To All! This Is A Rare Blank Canvas In Hicksville — Act Fast, Opportunities Like This Don’t Last!
| Location/Town | Oyster Bay |
| Area/County | Nassau County |
| Post Office/Postal City | Hicksville |
| Prop. Type | Single Family House for Sale |
| Style | Colonial |
| Year Built | 1924 |
| Basement | See Remarks |
| Construction | Unknown |
| Lot SqFt | 8,410 |
| Cooling | Central Air |
| Heat Source | See Remarks |
| Util Incl | See Remarks |
| Days On Market | 1 |
| Parking Features | On Street, Other |
| Tax Lot | 18 |
| School District | Hicksville |
| Middle School | Hicksville Middle School |
| Elementary School | East Street School |
| High School | Hicksville High School |
| Features | Open kitchen |
| Listing information courtesy of: Property Professionals Realty | |