RealtyDepotNY
Cell: 347-219-2037
Fax: 718-896-7020










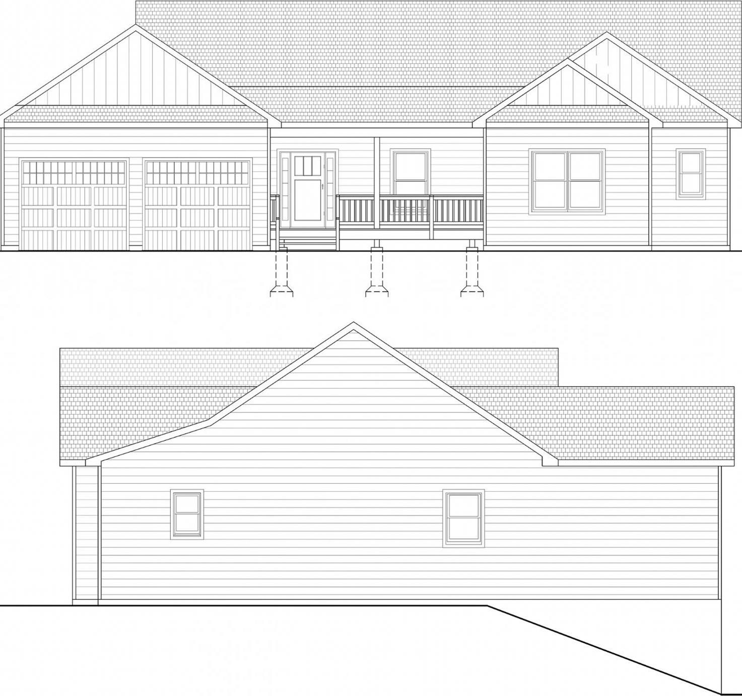
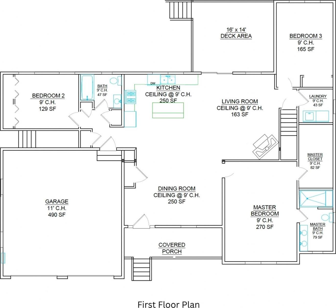
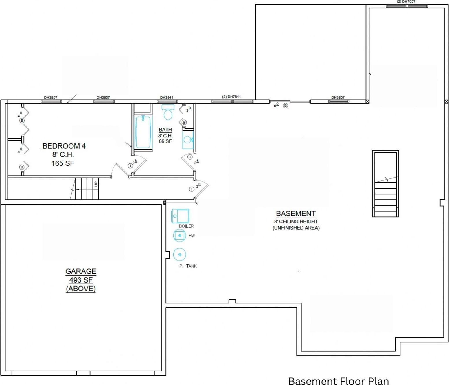
New Construction To Be Built!!! This Stunning New Construction Ranch-style Home Offers 2, 241 Square Feet Of Refined, Single-level Living Space Featuring Four Spacious Bedrooms, Three Full Bathrooms, And An Attached Two-car Garage, All Set On A Sprawling And Private 8.90-acre Estate Within The Marlboro School District. While The Foundation For Luxury Is Set, This Property Presents A Unique Opportunity For Buyers To Take The Lead In The Creative Process, As There Is Still Time To Customize The Home By Selecting Your Preferred Finishes And Choosing From Various High-end Upgrades To Suit Your Personal Style. Perfectly Situated In The Town Of Plattekill, The Home Balances Rural Serenity With Modern Convenience, Located Just Minutes From The Charming Eateries And Shops Of Clintondale And Plattekill, As Well As Local Favorites Like Rocking Horse Ranch And Various Area Farms. With A Premier Commuter Location Less Than 10 Minutes From Route 44/55 And The Mid-hudson Bridge, This Is A Rare Chance To Design Your Dream Home In A Tranquil Setting Without Sacrificing Accessibility.
| Location/Town | Plattekill |
| Area/County | Ulster County |
| Post Office/Postal City | Highland |
| Prop. Type | Single Family House for Sale |
| Style | Ranch |
| Tax | $14,500.00 |
| Bedrooms | 4 |
| Total Rooms | 11 |
| Total Baths | 3 |
| Full Baths | 3 |
| Year Built | 2026 |
| Basement | Partially Finished, Unfinished |
| Construction | Frame |
| Lot SqFt | 387,684 |
| Cooling | Central Air |
| Heat Source | Forced Air, Propane |
| Util Incl | Cable Available, Electricity Connected, Propane, Trash Collection Private |
| Condition | To Be Built, Under Constructio |
| Patio | Covered, Deck, Porch |
| Days On Market | 40 |
| Parking Features | Driveway, Garage |
| Tax Lot | 43.001 |
| School District | Marlboro |
| Middle School | Marlboro Middle School |
| Elementary School | Marlboro Elementary School |
| High School | Marlboro Central High School |
| Features | First floor bedroom, first floor full bath, energy star qualified door(s), open floorplan |
| Listing information courtesy of: Keller Williams Realty | |