RealtyDepotNY
Cell: 347-219-2037
Fax: 718-896-7020











































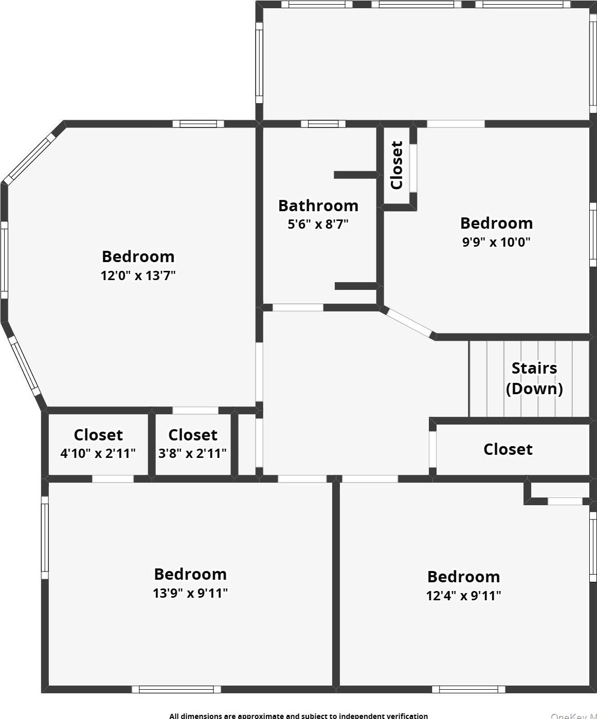
Welcome Home!!! A Lovely And Spacious Single Family Property, With An Extra Large Backyard, Located In The Center Of Middletown Is Looking For Its New Owners, Ready To Move In!!! The House Features A Total Of 4 Bedrooms, 2 Full Baths, Plus A Office Room, With A Semi Finished Basement For Laundry And Storage. New Ss Washer Dryer Included! The 1st Floor Consists Of A Nice Kitchen With Granite Countertops And New Ss Appliances, Big Entry Foyer, Dining Room, Living Room And A Full Bath. The 2nd Floor Consist 4 Spacious Bedrooms, Full Bath And Office Room. Additional Storage Space In The Attic. This Home Is Full Of Charm, With Original Woodwork And Hardwood Floor Throughout Both Floors! A Brick Fireplace With Stained Window Glass In The Living Room And Much More!! Multiple Parking In The Back Through A Shared Driveway. Plus Additional Land In The Back For Entertainment. Great Commuter Location In The Center Of Middletown, Close To Schools, Shopping, Highways And So On. Won't Last! Schedule Your Showing Today!!! Seller Is A Licensed Real Estate Agent.
| Location/Town | Middletown |
| Area/County | Orange County |
| Prop. Type | Single Family House for Sale |
| Style | Contemporary |
| Tax | $6,849.00 |
| Bedrooms | 4 |
| Total Rooms | 9 |
| Total Baths | 2 |
| Full Baths | 2 |
| Year Built | 1900 |
| Basement | Partially Finished |
| Construction | Aluminum Siding, Vinyl Siding |
| Lot Size | 50.2 x 204 |
| Lot SqFt | 10,261 |
| Cooling | Wall/Window Unit(s) |
| Heat Source | Baseboard, Ducts, Fo |
| Util Incl | Electricity Connected, Natural Gas Connected, Sewer Connected, Water Connected |
| Days On Market | 38 |
| Tax Assessed Value | 24400 |
| School District | Middletown |
| Middle School | Monhagen Middle School |
| Elementary School | Presidential Park Elementary |
| High School | Middletown High School |
| Features | First floor bedroom, first floor full bath, entrance foyer, formal dining, granite counters, natural woodwork, original details, primary bathroom |
| Listing information courtesy of: eXp Realty | |