RealtyDepotNY
Cell: 347-219-2037
Fax: 718-896-7020



























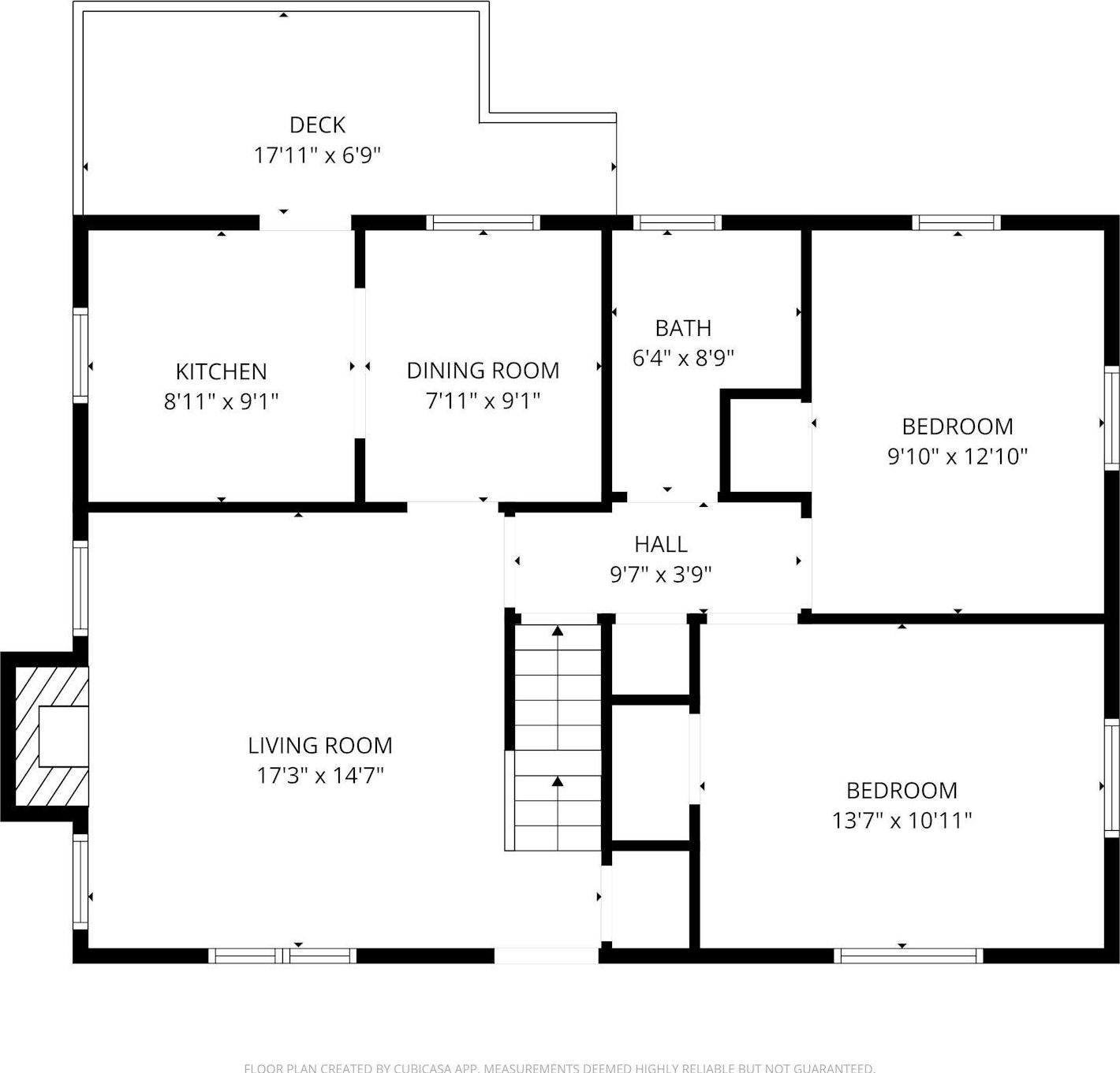
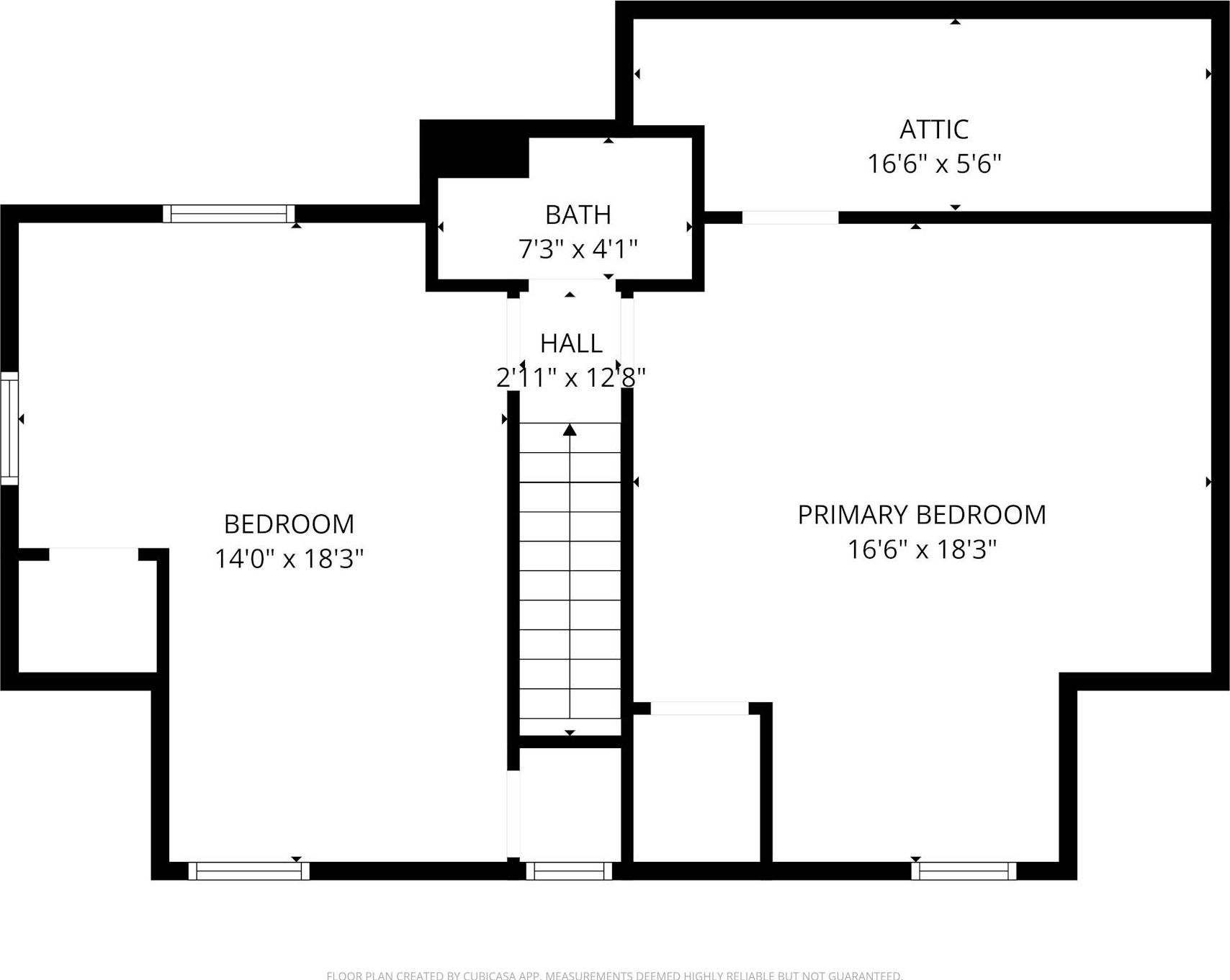
Welcome To 43 John Alden Road, A Charming Home Nestled In One Of New Rochelle’s Most Desirable Neighborhoods. This Inviting 4-bedroom, 2-bath Residence Offers 1, 338 Square Feet Of Comfortable Living Space, Ideal For Those Seeking Both Functionality And Warmth. Set On A Quiet Dead-end Street, This Home Offers A True Sense Of Community Where Neighbors Know Each Other, People Gather And There’s An Added Level Of Privacy That Makes The Setting Feel Special. Inside, You’ll Find A Bright And Welcoming Layout With Well-proportioned Rooms That Provide Flexibility For Everyday Living, Entertaining, Or Working From Home. The Bedrooms Offer Ample Space And The Two Full Bathrooms Add Convenience For Busy Households. This Home Is Ready For Its Next Owner To Bring Their Vision, Add Personal Touches, And Maximize Its Full Potential. Located In The Webster Elementary School District And Just Moments From The Hutchinson River Parkway, This Home Also Offers Easy Access To The Pelham Metro-north Station, Making Commuting Simple And Convenient. Whether You’re Looking To Settle In Or Customize To Your Taste, This Property Presents A Wonderful Opportunity To Enjoy Suburban Living With Close Proximity To Parks, Schools, Shopping And Transportation.
| Location/Town | New Rochelle |
| Area/County | Westchester County |
| Prop. Type | Single Family House for Sale |
| Style | Cape Cod |
| Tax | $18,669.00 |
| Bedrooms | 4 |
| Total Rooms | 6 |
| Total Baths | 2 |
| Full Baths | 2 |
| Year Built | 1945 |
| Basement | Unfinished |
| Construction | Frame |
| Lot SqFt | 5,663 |
| Cooling | None |
| Heat Source | Natural Gas |
| Util Incl | Electricity Connected, Natural Gas Connected, Sewer Connected, Trash Collection Public, Water Connected |
| Features | None |
| Patio | Deck |
| Days On Market | 1 |
| Lot Features | Back Yard, Front Yard, Near Public Transit |
| Parking Features | Driveway |
| Tax Assessed Value | 13450 |
| School District | New Rochelle |
| Middle School | Albert Leonard Middle School |
| Elementary School | Daniel Webster Elementary Scho |
| High School | New Rochelle High School |
| Features | First floor bedroom, first floor full bath, formal dining |
| Listing information courtesy of: Keller Williams NY Realty | |