RealtyDepotNY
Cell: 347-219-2037
Fax: 718-896-7020












































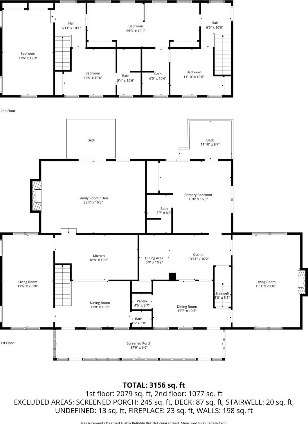
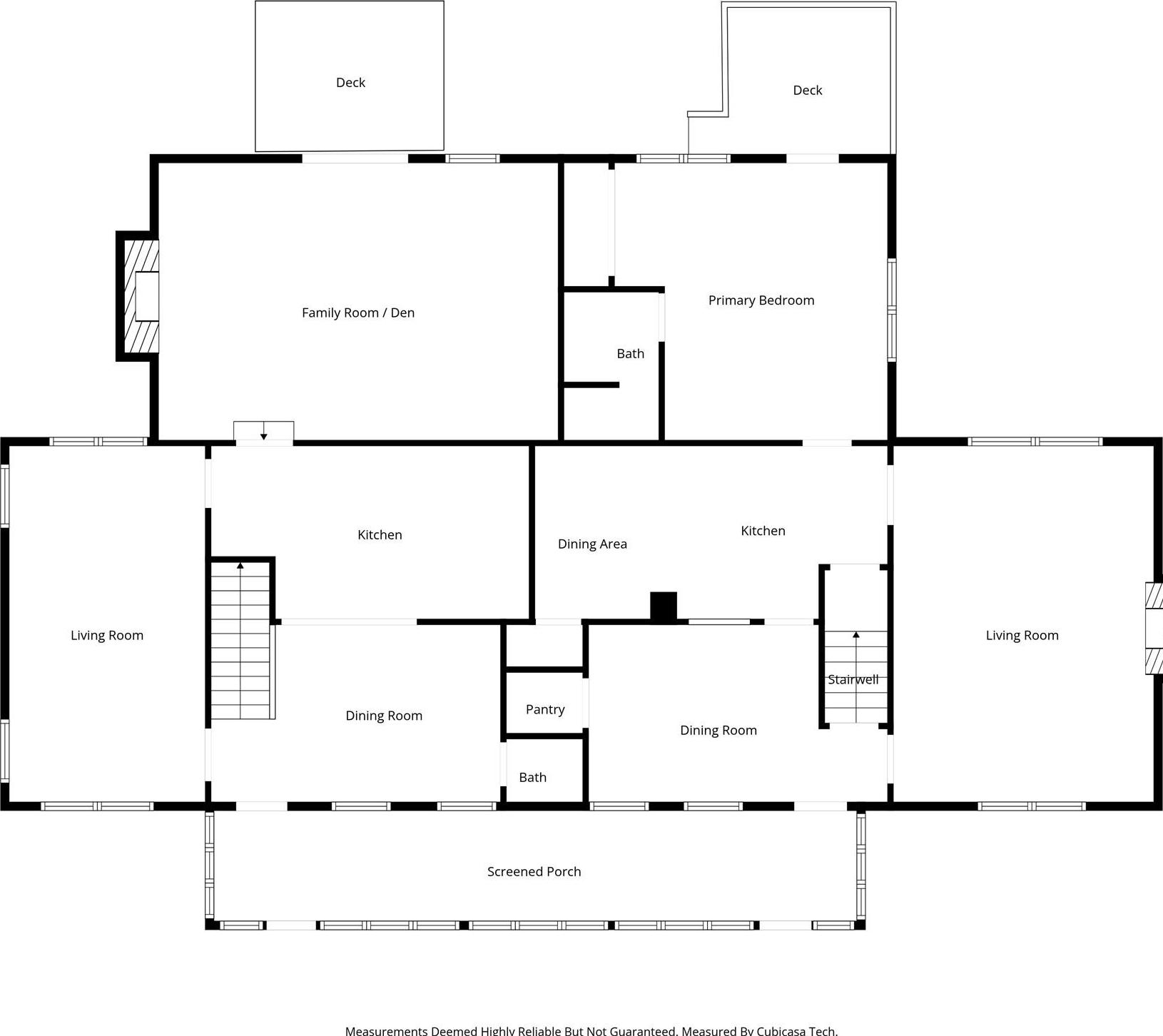
Strategic Multi-unit & Commercial Bundle – 5.4 Acres Near I-84. Total Price For The Bundle, Duplex On 1.40 Acres Plus 4 Acres Of Commercial Property Is Only $669, 000. Discover This Versatile Property In The Heart Of Newburgh, Offering A Rare Blend Of Residential Comfort And Massive Investment Potential. The Primary Residence Is A Sprawling 4-bedroom, 2.5-bathroom Home Featuring A Formal Dining Room, A Cozy Family Room Anchored By A Classic Fireplace, And Hardwood Floors Throughout. Attached Is A Private 1-bedroom, 1-bathroom Suite—perfect For Rental Income, A Home Office, Or An Accessory Apartment Setup. Apartment Could Make Use Of A 2nd Bedroom And Full Bathroom Through A Back Staircase. Situated On 1.40 Park-like Acres, This Property Is Being Sold As A Bundle With The Adjoining 4-acre Commercial Lot, Providing A Combined 5.4 Acres Of Opportunity. Whether You Are Looking For A Homestead With Room To Grow Or A Strategic Land Hold, This Location Can't Be Beat. Commuter’s Dream Will Be Easy To Rent: Just 2 Minutes To I-84 And Close To All Local Amenities. See Also Mls# 972444 For The Full Package Details.
| Location/Town | Newburgh (Town) |
| Area/County | Orange County |
| Post Office/Postal City | Newburgh |
| Prop. Type | Single Family House for Sale |
| Tax | $5,318.00 |
| Bedrooms | 5 |
| Total Baths | 4 |
| Full Baths | 4 |
| Year Built | 1926 |
| Basement | Unfinished |
| Construction | Frame |
| Total Units | 2 |
| Cooling | None |
| Heat Source | Oil |
| Util Incl | Electricity Connected |
| Parking Features | Carport, Driveway |
| Units | 2 |
| Features | First floor bedroom, first floor full bath, eat-in kitchen, formal dining, his and hers closets |
| Listing information courtesy of: Keller Williams Realty | |