RealtyDepotNY
Cell: 347-219-2037
Fax: 718-896-7020
























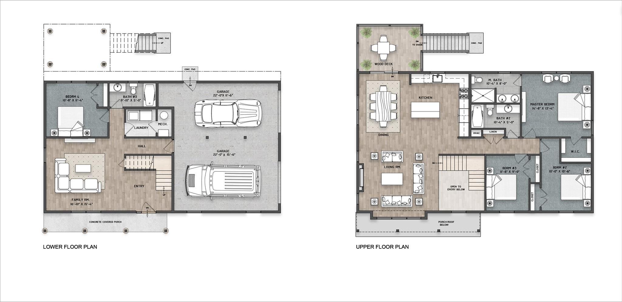
The Vida Model Offers A Thoughtfully Designed Layout That Blends Functionality, Comfort, And Modern Living Across Two Levels. This Approximately 2, 217 Sq. Ft. Home Features 4 Bedrooms And 3 Full Baths, Providing Flexible Living Space Ideal For Today’s Lifestyle. The Main Level Showcases An Open-concept Design With A Spacious Kitchen, Center Island, And Dining Area Flowing Seamlessly Into A Bright Living Room—perfect For Both Everyday Living And Entertaining. The Primary Suite Is Privately Positioned On This Level, Featuring A Walk-in Closet And A Well-appointed Bath. Two Additional Bedrooms And A Full Bath Complete The Main Floor, Along With Convenient Access To The Rear Deck For Outdoor Enjoyment. The Lower Level Offers Added Versatility With A Fourth Bedroom, Full Bath, And A Spacious Family Room—ideal For Guests, Extended Living, Or A Home Office. A Two-car Garage And Dedicated Storage/mechanical Space Complete The Home, Delivering Both Practicality And Comfort In A Well-balanced, Modern Design. As A New Construction Home, Buyers Will Have The Opportunity To Personalize Select Finishes, Including Siding And Roof Colors, Flooring, Tile, And Interior Paint Selections. Thoughtfully Curated Options Allow Buyers To Add Their Own Style While Maintaining The Overall Design And Quality Of The Home. Located Within The Lindenwood Lane, A Thoughtfully Designed 10-parcel Residential Community In The Town Of Newburgh, This Home Offers A Quiet, Private Setting With A Refined Neighborhood Feel. Homes Are Set On Spacious Lots With Long Driveways, Enhancing Privacy And Curb Appeal While Maintaining A Natural Connection To The Surrounding Landscape. Select Homes Offer Partial Mountain Views, Adding To The Appeal. Positioned Just Off Fostertown Road, The Location Provides Easy Access To Shopping, Dining, And Everyday Essentials, With Close Proximity To I-84 And I-87 For Convenient Commuting Throughout Orange County And Beyond. Enjoy All That The Hudson Valley Has To Offer, Including Farm-to-table Dining, Wineries, Breweries, Orchards, Local Farmers Markets, And Outdoor Recreation Such As Hiking, Biking, And Scenic Trails. Nearby Attractions, Waterfront Dining Along The Hudson River, And Destinations Like Woodbury Common Premium Outlets Further Enhance The Lifestyle This Location Provides.
| Location/Town | Newburgh (Town) |
| Area/County | Orange County |
| Post Office/Postal City | Newburgh |
| Prop. Type | Single Family House for Sale |
| Style | Contemporary, Raised Ranch |
| Tax | $13,000.00 |
| Bedrooms | 4 |
| Total Rooms | 7 |
| Total Baths | 3 |
| Full Baths | 3 |
| Year Built | 2026 |
| Construction | Frame |
| Lot SqFt | 56,192 |
| Cooling | Central Air |
| Heat Source | Forced Air, Heat Pum |
| Util Incl | Cable Available, Electricity Connected, Trash Collection Private, Underground Utilities |
| Condition | Under Construction |
| Days On Market | 17 |
| Window Features | Double Pane Windows, New Windows |
| Lot Features | Back Yard, Cul-De-Sac, Views |
| Parking Features | Attached |
| Tax Lot | 8 |
| School District | Newburgh |
| Middle School | MEADOW HILL GLOBAL EXPLORATION |
| Elementary School | Fostertown Etc Magnet School |
| High School | Newburgh Free Academy |
| Features | First floor bedroom, first floor full bath, double vanity, eat-in kitchen, entrance foyer, high ceilings, high speed internet, kitchen island, open floorplan, open kitchen, quartz/quartzite counters, recessed lighting, smart thermostat |
| Listing information courtesy of: eXp Realty | |