RealtyDepotNY
Cell: 347-219-2037
Fax: 718-896-7020




































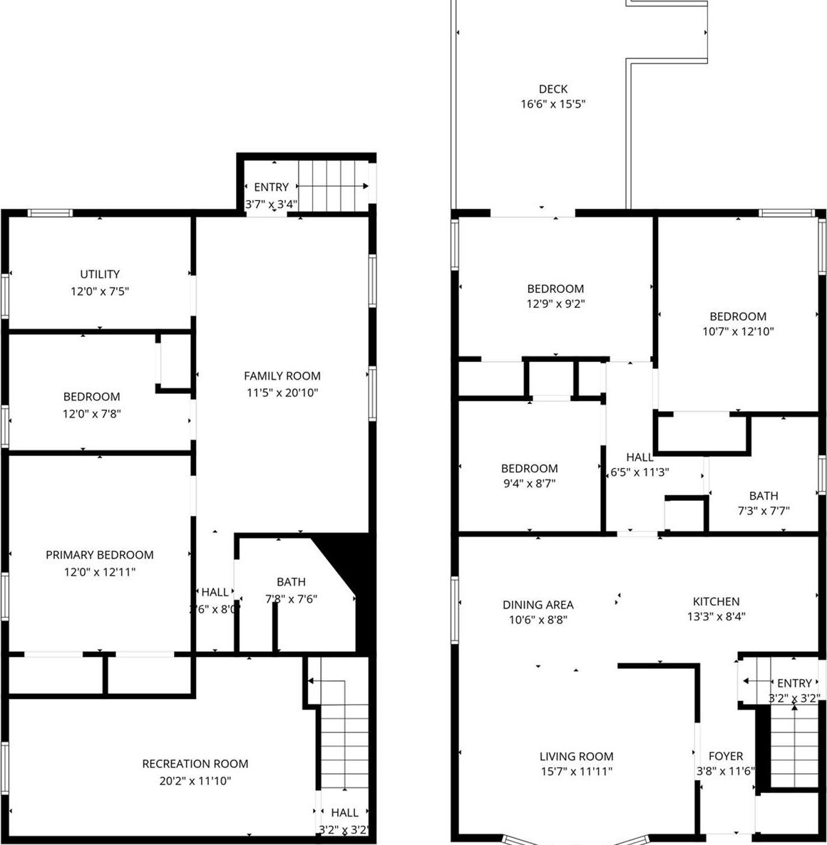
Discover The Charm Of This Beautifully Maintained Ranch-style Residence That Perfectly Blends Modern Comfort With Timeless Appeal. Step Inside To Find Gleaming Hardwood Floors, Recessed High-hat Lighting, And A Newly Renovated Spa-like Bathroom. The Open-concept Living And Dining Area Creates An Inviting Flow, While The Efficient Kitchen Boasts Stainless Steel Appliances, Oversized Cabinets, And Expansive Granite Countertops—ideal For Both Everyday Living And Entertaining. This Home Features Three Generously Sized Bedrooms, Each Designed For Comfort And Convenience. Sliding Doors Lead To An Oversized 66x149 Lot, Offering Endless Possibilities For Outdoor Relaxation, Gardening, Or Gatherings. The Full Finished Basement Expands The Living Space With Laundry, Utilities, Ample Storage, And An Additional Bath. A True Highlight Is Its Two Separate Entrances—providing Versatility For Extended Family, Guests, Or A Home Office Setup. The Basement Is Also Equipped With A 200-amp Electrical Panel, Ensuring Ample Power For All Your Modern Needs. Additional Amenities Include Gas Heating, Central Air Conditioning, And A Separate Hot Water Heater. Conveniently Located Near Shopping, Schools, And Transportation, This Residence Delivers Both Style And Functionality In One Perfect Package. Don’t Miss The Opportunity To Make This Exceptional Bellmore Home Your Own!
| Location/Town | Hempstead |
| Area/County | Nassau County |
| Post Office/Postal City | North Bellmore |
| Prop. Type | Single Family House for Sale |
| Style | Ranch |
| Tax | $14,569.00 |
| Bedrooms | 3 |
| Total Rooms | 6 |
| Total Baths | 2 |
| Full Baths | 2 |
| Year Built | 1959 |
| Basement | Full |
| Construction | Brick |
| Lot SqFt | 9,000 |
| Cooling | Central Air |
| Heat Source | Baseboard, Other |
| Util Incl | Electricity Available, Electricity Connected, Natural Gas Available, Natural Gas Connected, Water Available, Water Connected |
| Days On Market | 29 |
| Parking Features | Driveway |
| School District | Bellmore-Merrick |
| Middle School | Grand Avenue Middle School |
| Elementary School | Saw Mill Road School |
| High School | Wellington C Mepham High Sch |
| Features | Other |
| Listing information courtesy of: Royalux Realty LLC | |