RealtyDepotNY
Cell: 347-219-2037
Fax: 718-896-7020























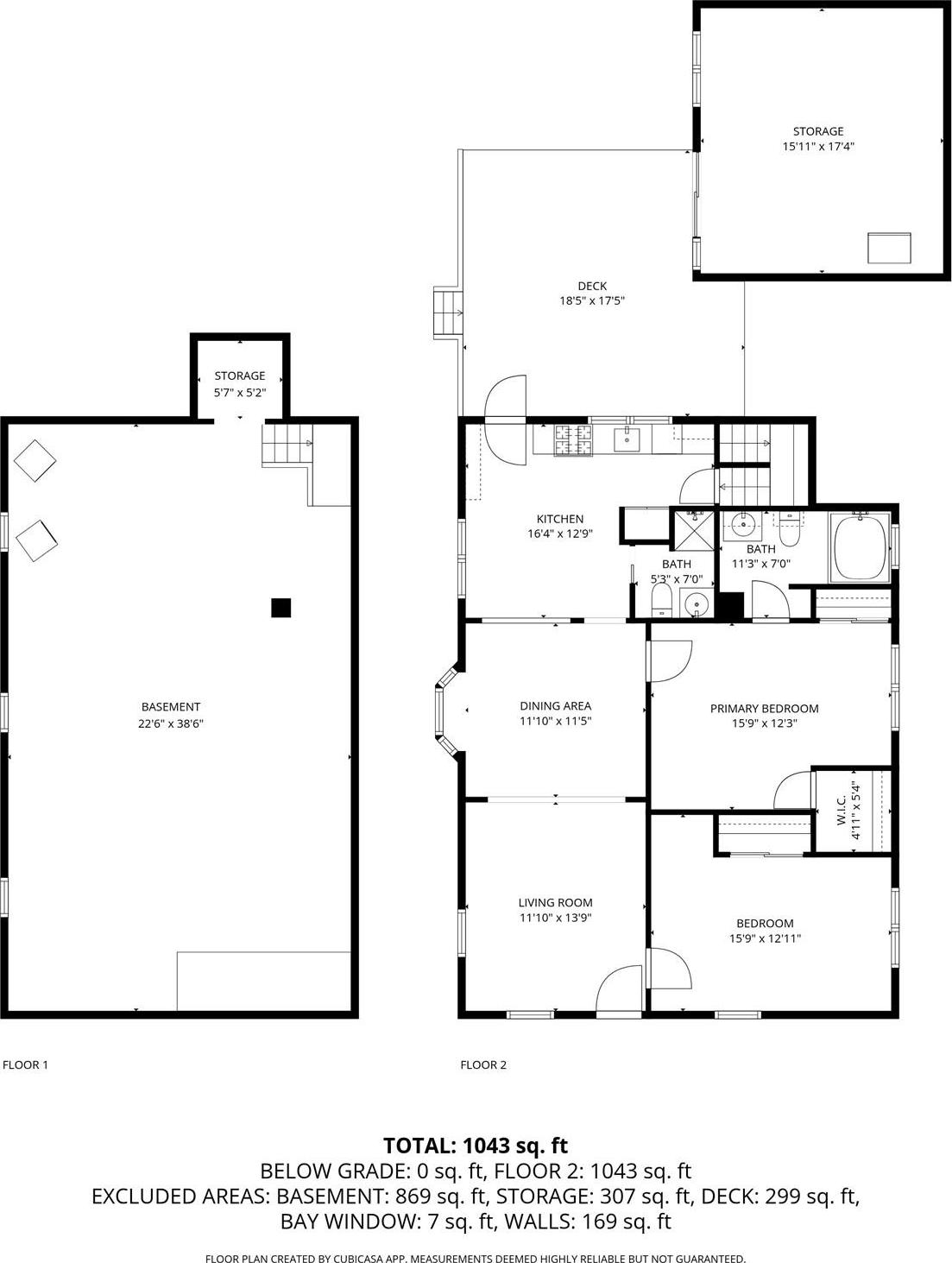
Welcome To 15 Dune Court In Northport, Ny — A Charming And Well-maintained Ranch Located On A Quiet Cul-de-sac Just Moments From Crab Meadow Beach And Northport Village. Built In 1919, This Residence Blends Classic Character With Practical Updates And A Convenient Location Close To Parks, Shopping, And Transportation. Property Highlights Two Bedrooms And Two Full Bathrooms With A Functional Single-level Layout Bright Eat-in Kitchen And Separate Dining Area, Providing Ample Space For Daily Living And Entertaining Gas Heating And Updated Mechanical Systems For Efficiency And Comfort Inviting Front Porch And Rear Deck Overlooking A Level, Landscaped Yard Large Detached Structure/outbuilding — Ideal For Use As Storage, A Workshop, Or Creative Space (verify Local Permit Requirements) Approximately 5, 227 Sq Ft Lot In A Peaceful Cul-de-sac Setting Low Property Taxes And Proximity To Northport Harbor, Local Restaurants, Schools, And Beaches This Property Offers An Excellent Opportunity To Enjoy All That Northport Living Provides — With A Balance Of History, Functionality, And Outdoor Space.
| Location/Town | Huntington |
| Area/County | Suffolk County |
| Post Office/Postal City | Northport |
| Prop. Type | Single Family House for Sale |
| Style | Ranch |
| Tax | $6,347.00 |
| Bedrooms | 2 |
| Total Rooms | 5 |
| Total Baths | 2 |
| Full Baths | 2 |
| Year Built | 1919 |
| Basement | Full, Unfinished |
| Construction | Unknown |
| Lot SqFt | 5,227 |
| Cooling | Ductless |
| Heat Source | Baseboard |
| Util Incl | See Remarks |
| Days On Market | 18 |
| Parking Features | Driveway |
| School District | Northport-East Northport |
| Middle School | Northport Middle School |
| Elementary School | Norwood Avenue School |
| High School | Northport Senior High School |
| Features | Ceiling fan(s), eat-in kitchen, open floorplan |
| Listing information courtesy of: Keller Williams Points North | |