RealtyDepotNY
Cell: 347-219-2037
Fax: 718-896-7020



































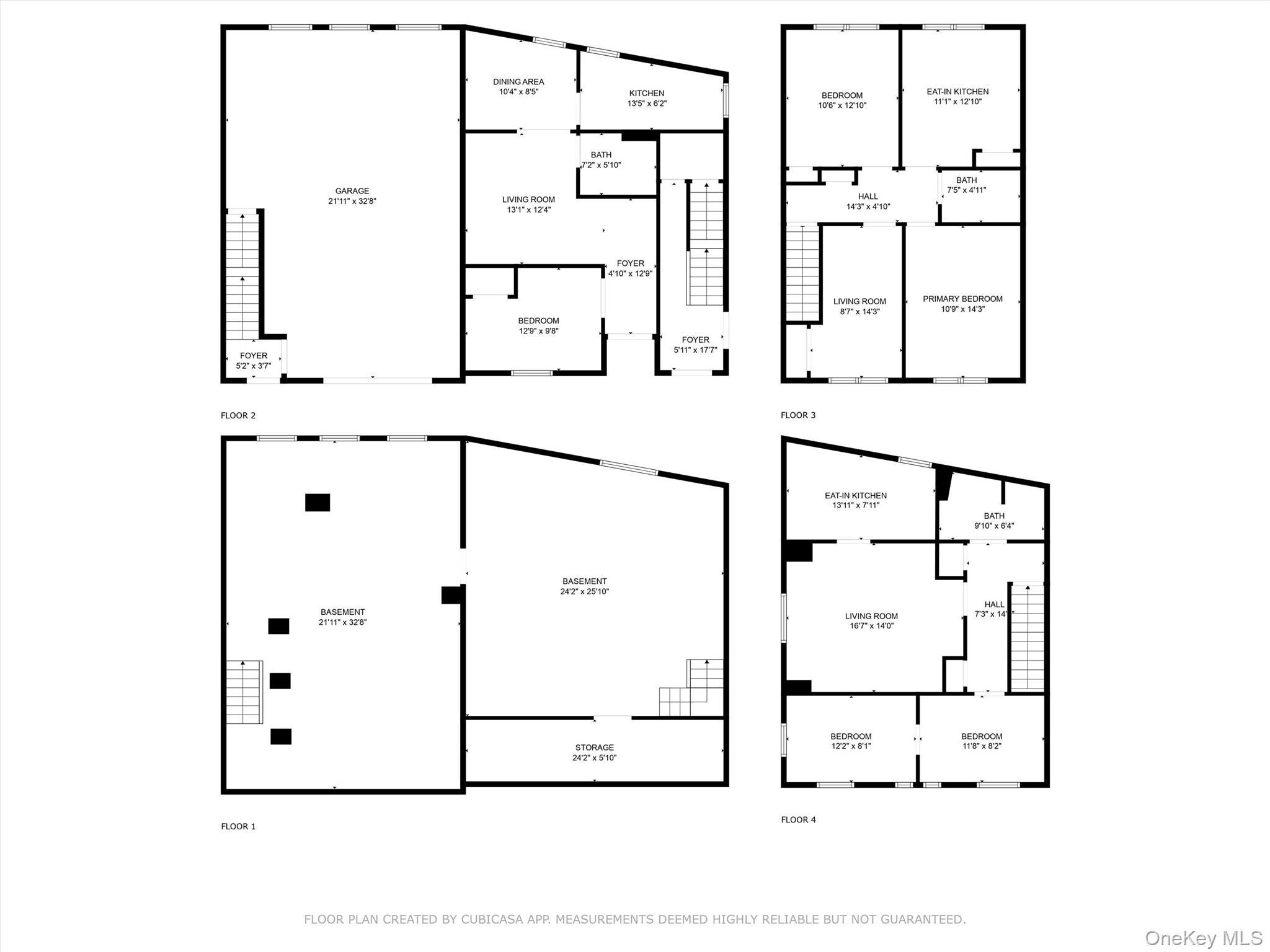
Why Buy Just A Single Family Home When You Can Buy A Single Family And Two Family In A Bundle. Live On Once Side And Rent The Other Or Rent The Whole Building. Two Tax Lots On One Deed. Enjoy Spectacular Unobstructed Views Of The Hudson River. Convenient Garage Parking Below The Single Family Side And Municipal Lot Parking Behind The Building For Your Tenants. The Basement Offers Tons Of Potential With Vision Has Separate Entrance And Large Windows. The Remaining Home Needs A Little Tlc Refresh To Maximize Your Income Potential. There Is One Oil Furance For Both Homes. Left Side Is A 2 Bedroom, One Bath Single Family (one Level - Like An Apartment) Home With A Garage Below And Basement. Multi Family Is A Two (2) Bedroom Over One (1) Bedroom W/ Access To Basement. Basement Extends Full Length Of Both Homes And Is Unfinished. Above Ground Oil Tank. One Furnace, 3 Meters. Garage Parking For 1 To 2 Cars. Short Distance To Town Or To The Hudson River, Train And Downtown Ossining. Home To Be Delivered Completely Vacant. Being Sold As Is. Oil Heat For Home. Water Heaters And Stove In Apt A Heated By Gas. Electric Stoves In Multi Family Unit. Snowblower And Ladder Included In Sale.
| Location/Town | Ossining |
| Area/County | Westchester County |
| Prop. Type | Single Family House for Sale |
| Tax | $16,506.00 |
| Bedrooms | 5 |
| Total Baths | 3 |
| Full Baths | 3 |
| Year Built | 1910 |
| Basement | Full, Unfinished |
| Construction | Aluminum Siding |
| Total Units | 3 |
| Lot SqFt | 871 |
| Cooling | Wall/Window Unit(s) |
| Heat Source | Oil |
| Util Incl | Cable Available, Phone Available, Sewer Connected, Trash Collection Public, Water Connected |
| Days On Market | 103 |
| Tax Assessed Value | 537300 |
| Units | 3 |
| School District | Ossining |
| Middle School | Anne M Dorner Middle School |
| High School | Ossining High School |
| Features | Eat-in kitchen, storage |
| Listing information courtesy of: THD Homes LLC | |