RealtyDepotNY
Cell: 347-219-2037
Fax: 718-896-7020
















































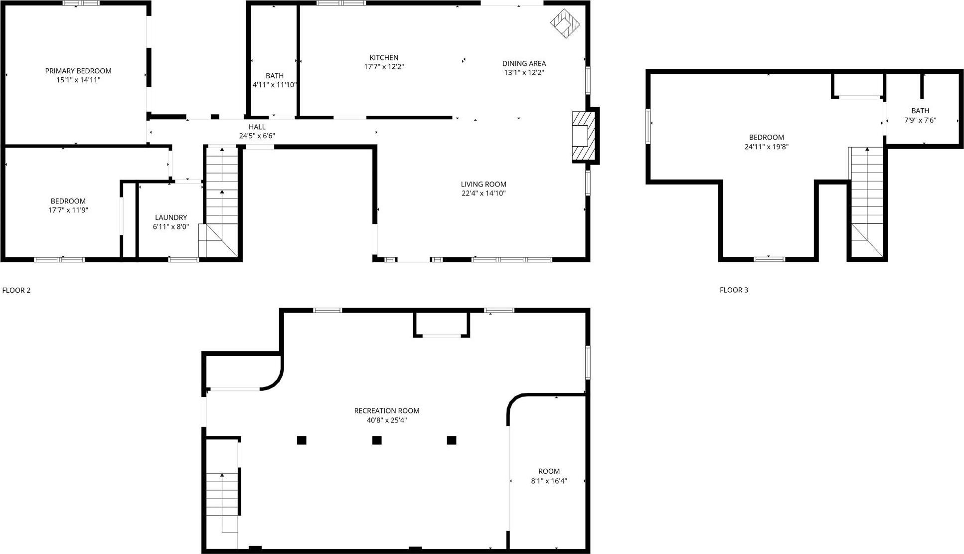
Your Hudson Valley Retreat Awaits! Discover The Perfect Blend Of Comfort, Convenience, And Charm In This Beautifully Maintained Four-bedroom, Three-bathroom Home In Pine Bush, Ny. Just 90 Minutes From New York City, This Residence Offers The Ideal Escape From The Hustle And Bustle While Keeping You Connected To Everything You Need. Step Inside And You’ll Find A Warm And Welcoming Layout, Complete With A Spacious Finished Basement That Comes Fully Furnished — Perfect For Extra Living Space, A Media Room, Or Guest Accommodations. With A Comfortable, Move-in-ready Design, This Home Is Ideal For Families, Remote Professionals, Or Those Seeking A Serene Retreat. Set Against The Backdrop Of The Shawangunk Wine Trail, The Property Offers Easy Access To Vineyards, Hiking Trails, And The Natural Beauty Of The Hudson Valley. From Watching The Leaves Change In The Fall To Summer Evenings On The Deck, Every Season Here Feels Like A Getaway. Whether You’re Searching For A Full-time Residence Or A Smart Investment As A Short-term Rental, This Home Delivers. With Pine Bush Schools, A Welcoming Community, And A Location In One Of The Hudson Valley’s Most Desirable Areas, It’s Easy To See Why So Many Are Drawn To This Region. This Property Is More Than Just A Home — It’s A Lifestyle.
| Location/Town | Shawangunk |
| Area/County | Ulster County |
| Post Office/Postal City | Pine Bush |
| Prop. Type | Single Family House for Sale |
| Style | Raised Ranch |
| Tax | $11,532.00 |
| Bedrooms | 4 |
| Total Rooms | 8 |
| Total Baths | 3 |
| Full Baths | 3 |
| Year Built | 2004 |
| Basement | Full |
| Construction | Frame |
| Lot SqFt | 87,120 |
| Cooling | Central Air, Wall/Window Unit(s) |
| Heat Source | Oil |
| Util Incl | Cable Available, Electricity Available, See Remarks |
| Days On Market | 177 |
| Parking Features | Driveway, Garage |
| School District | Pine Bush |
| Middle School | Crispell Middle School |
| Elementary School | Pine Bush Elementary School |
| High School | Pine Bush Senior High School |
| Features | First floor bedroom, first floor full bath, built-in features, eat-in kitchen, formal dining |
| Listing information courtesy of: Keller Williams Hudson Valley | |