RealtyDepotNY
Cell: 347-219-2037
Fax: 718-896-7020
















































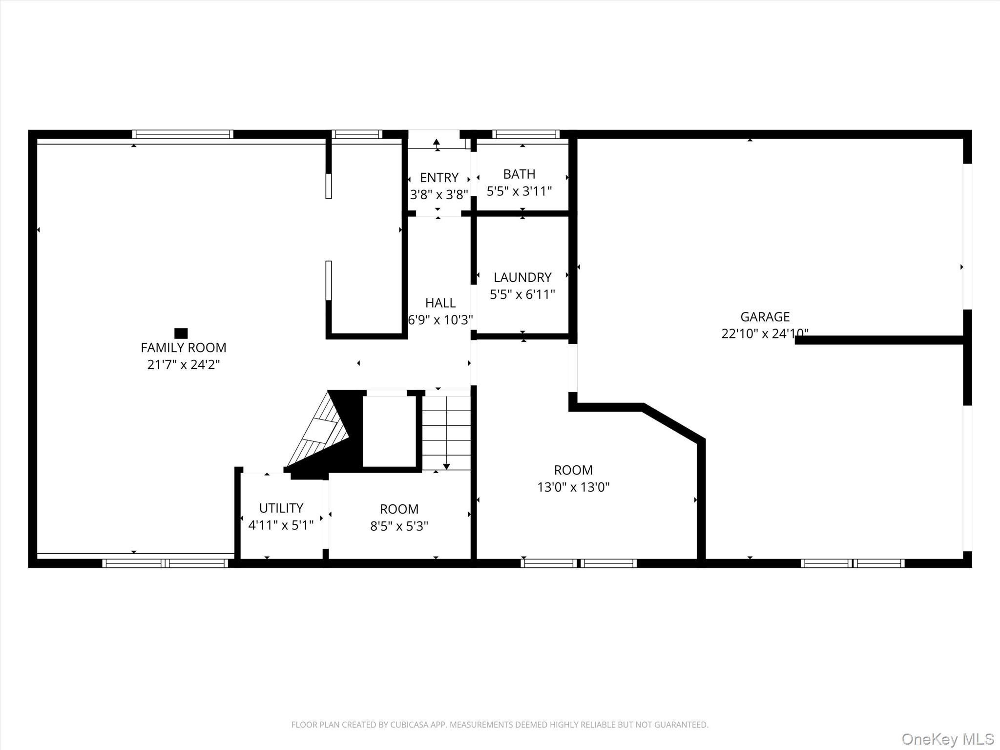
Come See One Of Putnam Valley’s Favorite Neighborhoods — Spruce Knolls. This Inviting 4-bedroom Home Has Been Freshly Painted, And All Hardwood Floors Refinished To Shine Bright For Its Next Owners. Enjoy A Sun-filled Eat-in Kitchen With A Skylight And A Door Leading To The Back Deck Overlooking The Yard, Great For Outdoor Dining. The Dining Room Offers Plenty Of Space For Gatherings, While The Living Room Features A Large Bay Window And A Cozy Fireplace Making It The Perfect Place To Relax Or Entertain. The Primary Bedroom Includes Its Own Full Bath And A Large Closet With Custom Built-ins. 3 Additional Bedrooms And Full Bath Complete This Level. The Lower Level Offers Even More Living Space With Brand New Flooring, Another Brick Fireplace, Built-in Shelving And A Convenient Half Bath. Large Storage Room With Work Benches, Laundry Room Plus An Attached 2 Car Garage. Set On A Beautiful, Level Yard In A Peaceful Cul-de-sac Neighborhood, This Is A Home You’ll Want To See! Putnam Valley Offers A Quiet, Country Lifestyle With Easy Access To Route 6, Taconic State Parkway, And Metro-north Stations Located In Peekskill (6 Miles), Cold Spring, And Cortlandt. You Can Commute To Nyc While Coming Home To Peace And Quiet.
| Location/Town | Putnam Valley |
| Area/County | Putnam County |
| Prop. Type | Single Family House for Sale |
| Style | Raised Ranch |
| Tax | $14,778.00 |
| Bedrooms | 4 |
| Total Rooms | 8 |
| Total Baths | 3 |
| Full Baths | 2 |
| 3/4 Baths | 1 |
| Year Built | 1965 |
| Basement | Finished, Storage Space, Walk-Out Access |
| Construction | Frame |
| Lot SqFt | 41,550 |
| Cooling | Wall/Window Unit(s) |
| Heat Source | Baseboard, Oil |
| Util Incl | Trash Collection Private |
| Property Amenities | Refrigerator, stove, dishwasher, microwave, washer/dryer |
| Patio | Deck, Patio, Porch |
| Days On Market | 7 |
| Lot Features | Back Yard, Front Yard, Level, Part Wooded |
| Parking Features | Driveway |
| Tax Assessed Value | 541500 |
| School District | Putnam Valley |
| Middle School | Putnam Valley Middle School |
| Elementary School | Putnam Valley Elementary Schoo |
| High School | Putnam Valley High School |
| Features | Built-in features, eat-in kitchen, entrance foyer, primary bathroom, storage |
| Listing information courtesy of: Houlihan Lawrence Inc. | |