RealtyDepotNY
Cell: 347-219-2037
Fax: 718-896-7020
























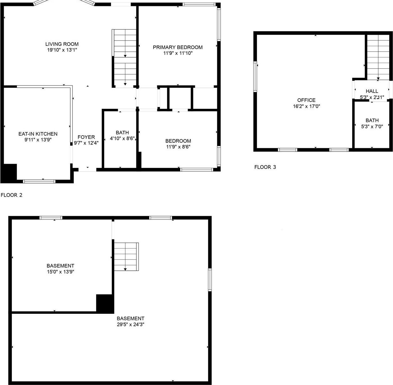
Welcome To This Beautifully Maintained Cape. This 4~ Bedroom, 2--full Bathroom Home With Gas Heat Nestled In The Heart Of St. James—just Minutes From The Town Center, Train Station, And The Wonderful Shops And Restaurants Along Lake Avenue. Located Within The Award-winning Smithtown School District, It Offers The Perfect Blend Of Convenience And Community. Inside, This Charming Home Combines Comfort, Style, And Functionality. The Basement Provides Laundry And Generous Storage Space. Step Outside To A Fully Fenced Backyard With Patio Pavers, —ideal For Outdoor Dining, Entertaining, Or Simply Relaxing. As A Bonus, The Property Includes 17 Head In-ground Sprinkler System For Easy Lawn Care, And Totally Fenced Yard. Don’t Miss The Opportunity To Make This Beautiful Cape Cod Your New Home In The Desirable Neighborhood Of Saint James!
| Location/Town | Smithtown |
| Area/County | Suffolk County |
| Post Office/Postal City | Saint James |
| Prop. Type | Single Family House for Sale |
| Style | Cape Cod |
| Tax | $11,161.00 |
| Bedrooms | 4 |
| Total Rooms | 8 |
| Total Baths | 2 |
| Full Baths | 2 |
| Year Built | 1957 |
| Basement | Full, Partially Finished |
| Construction | Aluminum Siding, Brick, Frame |
| Lot Size | 78x139 var |
| Lot SqFt | 10,890 |
| Cooling | Wall/Window Unit(s) |
| Heat Source | Ducts, Natural Gas |
| Util Incl | Cable Connected, Natural Gas Connected |
| Days On Market | 29 |
| Parking Features | Driveway |
| School District | Smithtown |
| Middle School | Nesaquake Middle School |
| Elementary School | St James Elementary School |
| High School | Smithtown High School-East |
| Features | First floor bedroom, first floor full bath |
| Listing information courtesy of: Realty Connect USA L I Inc | |