RealtyDepotNY
Cell: 347-219-2037
Fax: 718-896-7020




















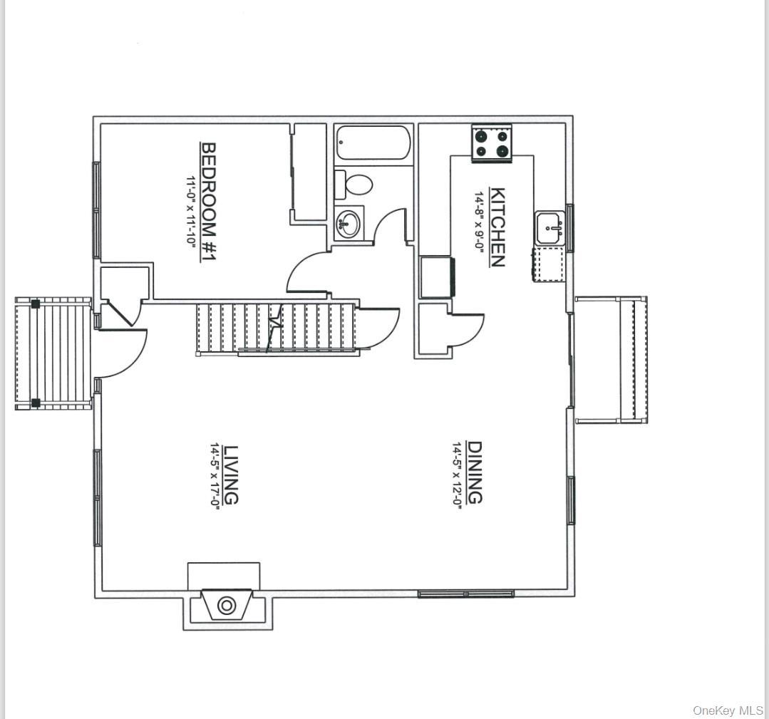
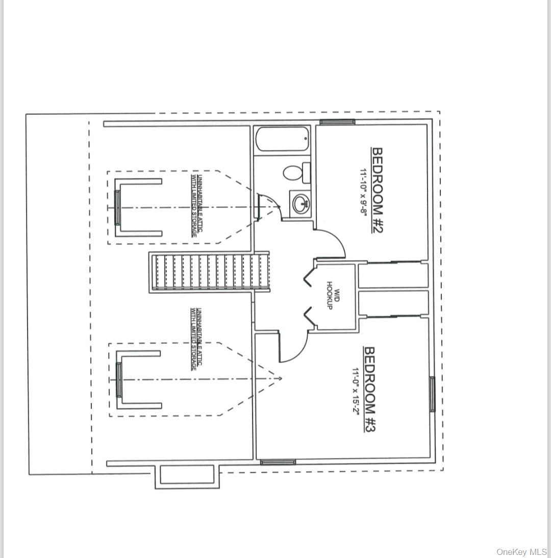
New Construction Home....this To Be Built 3 Bedroom Cape/ The First Floor Has One Bedroom And The Second Floor Has 2 Bedrooms/there Is 2 Full Bathrooms... One On The First Floor...one On The Second Floor/you Have A Choice Of Cabinets/choice Of Tiles For The Bathrooms/choice Of Granite For The Kitchen/choice Of Carpet For The Bedrooms ( All From Builder's Selection) Stainless Steel Appliance Package( From Builder's Selection)/heat Pump/central Air Conditioning/full Unfinished Basement With 8ft Ceilings With One Egress Window Plus 3 Additional Windows That Are 2x3 In Size ( They Are Larger Then The Standard Size Basement Window) 200 Amp Service/basement Size Approximately 900 Square Feet/ Construction To Begin Soon!!! Photos Of A Previously Built Home! You Still Have Time To Customize!!!! ( Spanish ) Esta Casa Tipo Cape De 3 Dormitorios Se Construirá/ La Primera Planta Tiene Un Dormitorio Y La Segunda Planta Dos/ Hay Dos Baños Completos... Uno En La Primera Planta Y Otro En La Segunda/ Puede Elegir Entre Gabinetes/ Azulejos Para El Baño/ Granito Para La Cocina/alfombra Para Los Dormitorios (todo A Elección Del Constructor) Paquete De Electrodomésticos De Acero Inoxidable/bomba De Calor/aire Acondicionado Central/sótano Completo Sin Terminar Con Techos De 8 Pies Con Una Ventana De Salida Más 3 Ventanas Adicionales Que Son 2x3 En Tamaño (son Más Grandes Que Las Ventanas De Sótano De Tamaño Estándar) El Tamaño Del Sótano Es De Aproximadamente 900 Pies Cuadrados. La Construcción Comenzará Pronto!! Fotos De Una Casa Ya Construida...
| Location/Town | Brookhaven |
| Area/County | Suffolk County |
| Post Office/Postal City | Shirley |
| Prop. Type | Single Family House for Sale |
| Style | Cape Cod |
| Bedrooms | 3 |
| Total Rooms | 6 |
| Total Baths | 2 |
| Full Baths | 2 |
| Year Built | 2025 |
| Basement | Full, Unfinished |
| Construction | Vinyl Siding |
| Lot Size | 50x100 |
| Cooling | Central Air, ENERGY STAR Qualified |
| Heat Source | Heat Pump |
| Util Incl | Electricity Available |
| Days On Market | 217 |
| School District | William Floyd |
| Middle School | William Floyd Middle School |
| Elementary School | William Floyd Elementary Schoo |
| High School | William Floyd High School |
| Features | First floor bedroom, first floor full bath |
| Listing information courtesy of: Douglas Elliman Real Estate | |