RealtyDepotNY
Cell: 347-219-2037
Fax: 718-896-7020



































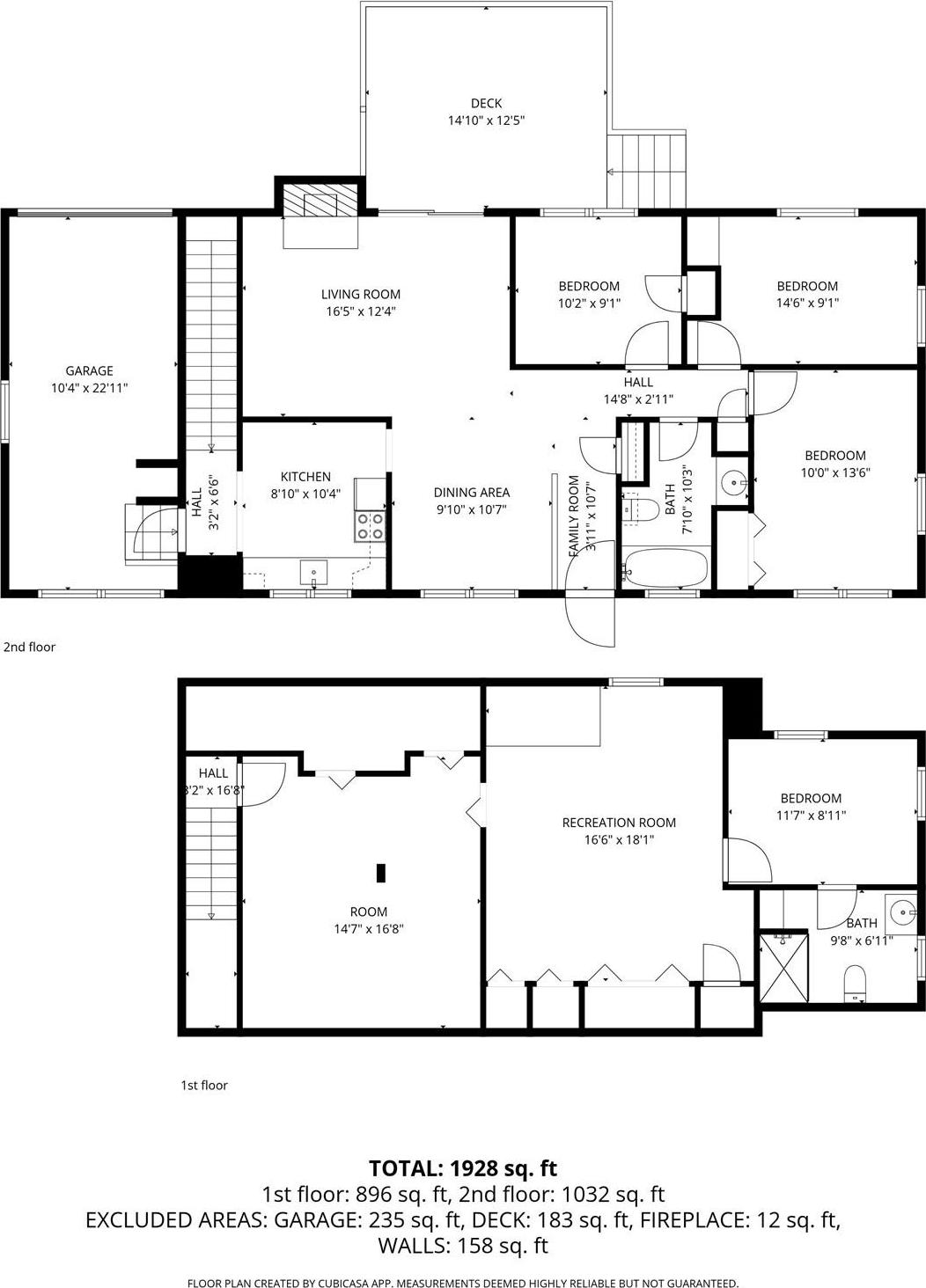
Check Out The Virtual Tour Button Located Above The Mls # On The Top Left Of Your Screen. House Of Charm Is Sitting Pretty On Over 1/3 Acre! The Long Belgian Block Driveway Provides Plenty Of Space For Your Guests' Cars. Follow The Path To The Covered Front Porch Which Welcomes You Inside. From The Sun-filled Dining Room With Hardwood Floors You Can See The Custom Fireplace Which Takes Center Stage In The Living Room And Also Features Sliding Doors That Lead To The Private Deck. Can You Imagine Yourself Entertaining, Watching The Beautiful Sunset Or Sipping A Cup Of Coffee Here? There Are Just A Few Steps To The Gently Rolling Property Perfect For A Game Of Bocce Ball Or Catch. The Gleaming Hard Wood Floors Are Through Out The Main Level Except For The Kitchen Which Is Terracotta. The Chef's Kitchen Is Well Equipped With White Cabinets, Stainless Steel Appliances & A Granite Countertop For Prep Of Many Gourmet Meals. The Right Wing Boasts The Primary Bedroom Facing Front With Ample Closet Space For A Clothes Horse. Bedroom 2 Boasts A Attractive Vaulted Beamed Ceiling With A Cubby For Extra Sleeping Quarters. Bedroom 3 Is Cheery, Comfortable And The Closet Provides Ample Storage. The Entire Lower Level Is Finished With A Full Bath For Guest Quarters, Media Room, Playroom , Office & Laundry Room Ready To Meet All Your Needs Or Wants. Some Of The Special Attributes Are: Your Private Beach Just Footsteps Away, The Superior Shoreham Wading River School District, This Quiet Country Neighborhood, The Ranch Style Floor Plan, The Privacy It Offers But Close Proximately To Houses Of Worship, Schools, Parks, Shopping, Restaurants, Parkways & So Much More! Upgrades Included Are 150-amp Electrical Service, 8-zone In-ground Sprinkler System, Approx. 10-year-old Roof, Many Windows Are Replaced And A One Car Garage With Lots Of Overhead Storage. Everyday Life Is A Picnic In This Home Which Combines Comfort, Functionality And Coastal Charm. Hurry Take A Look & Fall In Love It Won't Last!
| Location/Town | Brookhaven |
| Area/County | Suffolk County |
| Post Office/Postal City | Shoreham |
| Prop. Type | Single Family House for Sale |
| Style | Ranch |
| Tax | $10,890.00 |
| Bedrooms | 3 |
| Total Rooms | 6 |
| Total Baths | 2 |
| Full Baths | 2 |
| Year Built | 1960 |
| Basement | Finished, Full |
| Construction | Advanced Framing Technique |
| Lot SqFt | 15,246 |
| Cooling | Attic Fan |
| Heat Source | Baseboard |
| Util Incl | Cable Connected, Electricity Connected, Trash Collection Private, Trash Collection Public, Water Connected |
| Features | Mailbox |
| Condition | Actual |
| Patio | Patio, Porch |
| Days On Market | 12 |
| Lot Features | Garden, Landscaped, Private |
| Parking Features | Driveway, Garage, Off Street |
| Tax Assessed Value | 2545 |
| School District | Shoreham-Wading River |
| Middle School | Albert G Prodell Middle School |
| Elementary School | Miller Avenue School |
| High School | Shoreham-Wading River High Sch |
| Features | First floor bedroom, first floor full bath, eat-in kitchen, entrance foyer, granite counters, in-law floorplan, original details |
| Listing information courtesy of: Daniel Gale Sothebys Intl Rlty | |