RealtyDepotNY
Cell: 347-219-2037
Fax: 718-896-7020












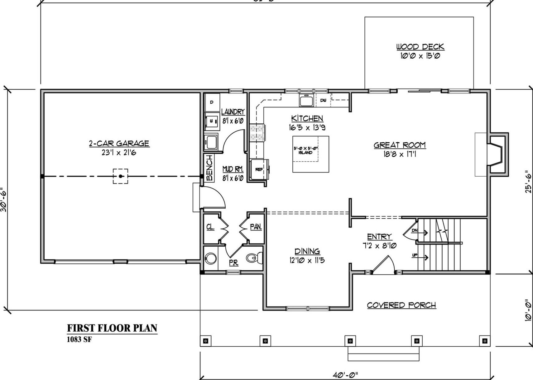
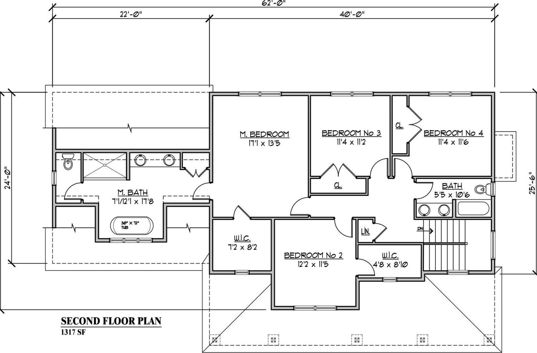
Beautiful New Construction Being Built In Ridgebury Estates, A New Community Of Carefully Crafted Colonials Perched High On A Hill With Tree-lined Streets, Stone Walls And Lots Of Open Space. Situated In The Heart Of Orange County, Ny And In The Highly Sought-after Minisink Valley School District. The Amanda I, A Beautifully Crafted New Construction Home That Blends Modern Style With Thoughtful Design. Featuring Four Bedrooms And 2.5 Bathrooms, This Home Offers Comfort, Functionality, And High-end Finishes Throughout. Step Into The Bright And Inviting Main Level, Where Red Oak Hardwood Floors Flow Through The Open-concept Living Areas. The Spacious Living Room Is Anchored By A Warm Fireplace, Creating A Perfect Space For Relaxation And Entertaining. The Chef-inspired Kitchen Is Outfitted With Custom Cabinetry, Quartz Countertops, A Stylish Tile Backsplash And A Center Island Ideal For Casual Dining Or Morning Coffee. All Four Bedrooms Are Located On The Upper Level And Feature Plush Wall-to-wall Carpeting For Comfort And Warmth. The Primary Suite Is A True Retreat With Vaulted Ceilings, A Private Bath, Walk-in Closet, And Ample Natural Light. Additional Bedrooms Offer Generous Closets, And There's A Second Full Bath Conveniently Located Nearby. Additional Highlights Include Central A/c, A Laundry Room, And Tray Ceilings That Add An Elegant Architectural Touch. Enjoy Outdoor Living On The Charming Covered Front Porch With Stone Accents, Enhancing The Home’s Curb Appeal.
| Location/Town | Wawayanda |
| Area/County | Orange County |
| Post Office/Postal City | Slate Hill |
| Prop. Type | Single Family House for Sale |
| Style | Colonial |
| Tax | $13,451.00 |
| Bedrooms | 4 |
| Total Rooms | 7 |
| Total Baths | 3 |
| Full Baths | 2 |
| 3/4 Baths | 1 |
| Year Built | 2026 |
| Basement | Full, Unfinished |
| Construction | Frame, Stone, Vinyl Siding |
| Lot SqFt | 20,037.60 |
| Cooling | Central Air |
| Heat Source | Forced Air |
| Util Incl | Cable Available, Electricity Connected, Propane, Trash Collection Private |
| Condition | Under Construction |
| Patio | Covered, Deck, Porch |
| Days On Market | 224 |
| Lot Features | Cul-De-Sac, Level |
| Parking Features | Attached, Driveway, Garage |
| Tax Lot | 12 |
| School District | Minisink Valley |
| Middle School | Minisink Valley Middle School |
| Elementary School | Minisink Valley Elementary |
| High School | Minisink Valley High School |
| Features | Ceiling fan(s), chandelier, double vanity, eat-in kitchen, formal dining, high ceilings, kitchen island, pantry, primary bathroom, quartz/quartzite counters, soaking tub, walk-in closet(s) |
| Listing information courtesy of: Realty Promotions Inc | |