RealtyDepotNY
Cell: 347-219-2037
Fax: 718-896-7020



























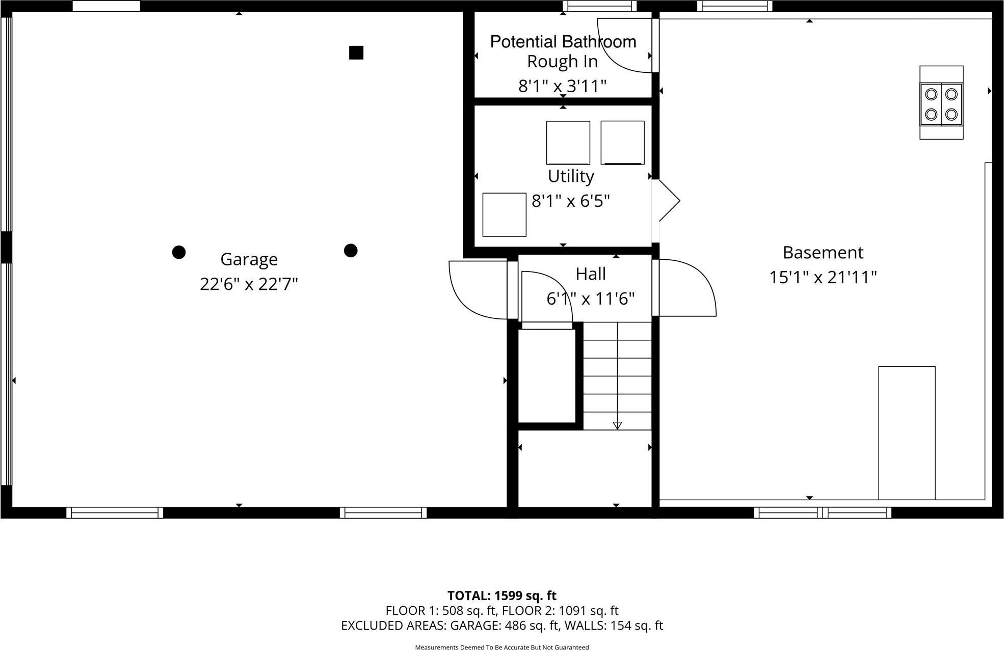
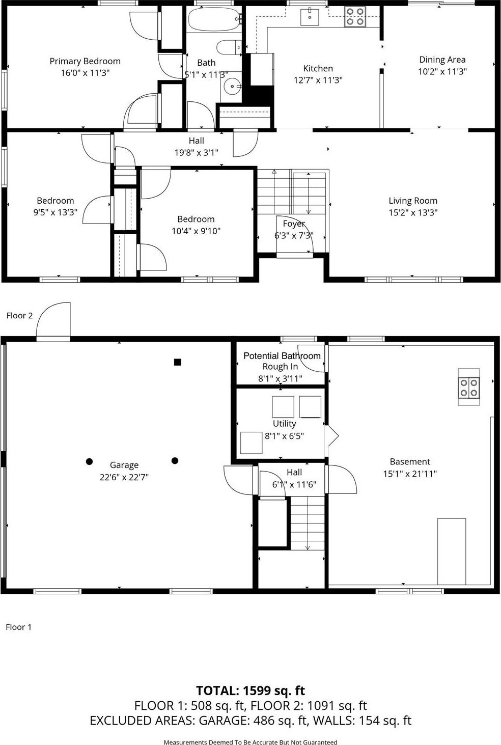
Located In The Town Of Wappinger, Arlington Schools, Sits 8 Daniel Sabia Drive. Situated On Over An Acre Of Level Land, Set Back Off The Road, Sits This 3 Bedroom Raised Ranch Ready For Its Next Owner. Tasteful Updates Throughout Featuring Newly Refinished Oak Flooring, Freshly Painted Walls And Luxury Vinyl Plank Flooring Throughout The Lower Level. Lower Level Has Roughed In Plumbing For Future Half Or Full Bath. Oversized 2 Car Garage And Expansive Rear Deck, Perfect For Entertaining! Excellent Location, Private Yet Relative To Culinary Grade Restaurants, Schools, Shopping And More! Minutes To Taconic Pkwy And 70 Miles North Of Manhattan. Priced To Sell! **interior Images Are Virtually Staged**
| Location/Town | Wappinger |
| Area/County | Dutchess County |
| Post Office/Postal City | Wappingers Falls |
| Prop. Type | Single Family House for Sale |
| Style | Raised Ranch |
| Tax | $8,684.00 |
| Bedrooms | 3 |
| Total Rooms | 8 |
| Total Baths | 1 |
| Full Baths | 1 |
| Year Built | 1983 |
| Basement | Finished |
| Construction | Frame |
| Lot SqFt | 48,787 |
| Cooling | None |
| Heat Source | Baseboard, Oil |
| Util Incl | Cable Connected, Electricity Connected, Phone Connected |
| Days On Market | 5 |
| Parking Features | Driveway, Garage |
| Tax Assessed Value | 380500 |
| School District | Arlington |
| Middle School | Union Vale Middle School |
| Elementary School | Noxon Road Elementary School |
| High School | Arlington High School |
| Features | First floor bedroom, first floor full bath |
| Listing information courtesy of: KW MidHudson | |