RealtyDepotNY
Cell: 347-219-2037
Fax: 718-896-7020





































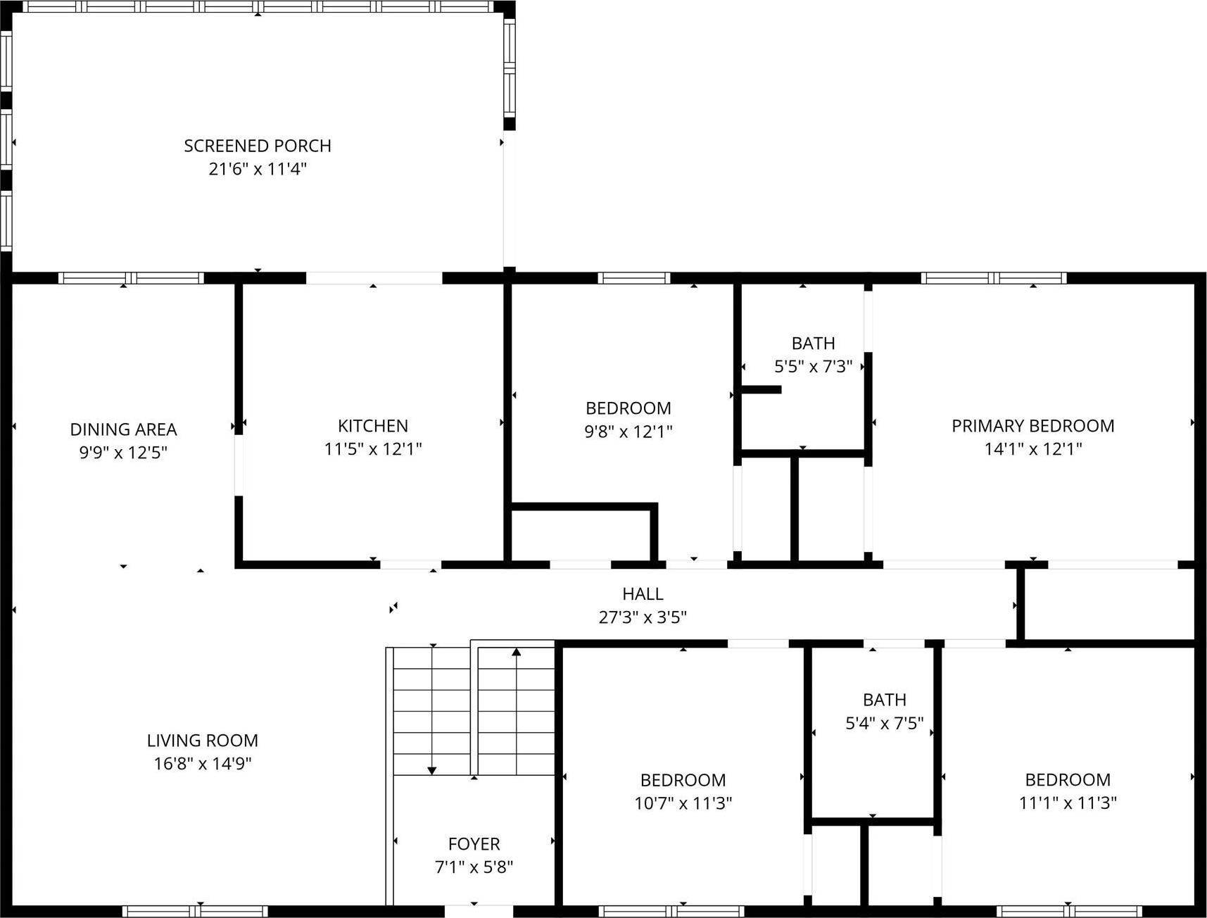
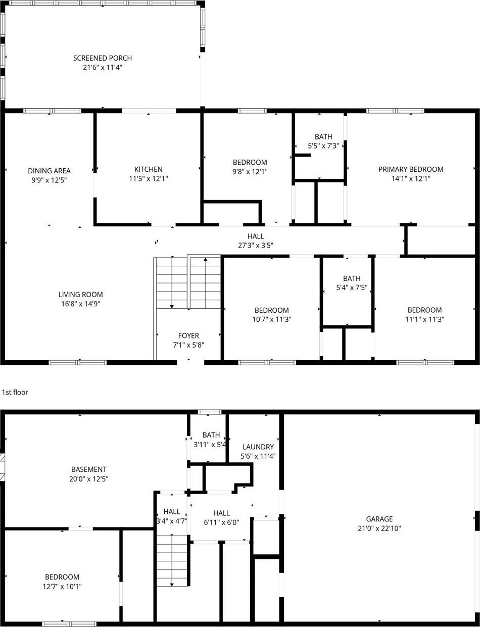
Spacious 5-bedroom, 2-bath Single-family Home Offering 2, 256 Sq Ft Of Living Space On .39 Acres In A Desirable Wappingers Falls Location. This Home Offers Great Potential And Is Ready For Your Personal Touch And Imagination. The Layout Includes A Possible All-season Room, Granite Countertops, A Finished Basement With A Fireplace, Additional Living Space, And A Bedroom, Providing Flexibility For Guests, Extended Living, Or Recreation. The Fenced-in Yard Offers Plenty Of Ample Space For Outdoor Enjoyment, Entertaining, And Gatherings. Conveniently Located Near Shopping, Restaurants, And Everyday Amenities, And Within The Roy C. Ketcham High School Area. Bring Your Vision And Make This Home Your Own—don’t Miss This Opportunity To Create New Memories In A New Neighborhood.
| Location/Town | Wappinger |
| Area/County | Dutchess County |
| Post Office/Postal City | Wappingers Falls |
| Prop. Type | Single Family House for Sale |
| Style | Raised Ranch |
| Tax | $10,429.00 |
| Bedrooms | 5 |
| Total Rooms | 10 |
| Total Baths | 3 |
| Full Baths | 2 |
| 3/4 Baths | 1 |
| Year Built | 1975 |
| Basement | Full |
| Construction | Cedar |
| Lot SqFt | 16,988 |
| Cooling | Wall/Window Unit(s) |
| Heat Source | Baseboard, Hot Water |
| Util Incl | Cable Available, Phone Available, Sewer Connected, Trash Collection Private |
| Condition | Actual |
| Patio | Covered, Screened |
| Days On Market | 25 |
| Window Features | Double Pane Windows |
| Lot Features | Back Yard, Cleared, Front Yard |
| Parking Features | Driveway |
| Tax Assessed Value | 404500 |
| Tax Lot | 123 |
| School District | Wappingers |
| Middle School | Wappingers Junior High School |
| Elementary School | Myers Corners |
| High School | Roy C Ketcham Senior High Sch |
| Features | Entrance foyer, granite counters, open kitchen, walk through kitchen |
| Listing information courtesy of: Century 21 Alliance Rlty Group | |