RealtyDepotNY
Cell: 347-219-2037
Fax: 718-896-7020


















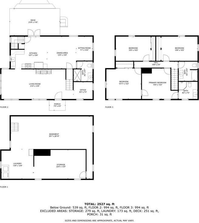
Welcome To This Beautifully Renovated 1929 Colonial Farmhouse For Sale In The Village Of Warwick, Ny, Ideally Located On Maple Avenue Within Walking Distance To Downtown. Set On A Half-acre With Mature Trees And Open Lawn Space, This Home Offers Classic Hudson Valley Character Paired With Thoughtful Updates And Everyday Practicality. Originally Renovated In 2013, The Home Maintains Its Historic Charm With Oak Hardwood Floors, Detailed Moldings, And Timeless Architectural Elements, While Incorporating Modern Improvements For Comfortable Living. The Spacious Eat-in Kitchen With Stainless Steel Appliances Connects Easily To A Cozy Living Area And Opens To A Private Deck And Fire Pit, Creating A Natural Flow For Both Daily Life And Entertaining. A Bright Living Room With A Wood-burning Fireplace Provides A Welcoming Gathering Space, And A Tucked-away Office Nook Offers Great Flexibility For Working From Home. A Full Bathroom On The Main Level Adds Convenience. Upstairs, Four Well-sized Bedrooms And Two Full Bathrooms Provide Ample Rooms To Live In, Host Guests, Or Create Additional Workspace. Storage Is Abundant With An Unfinished Basement, Attic Space, And A Detached One-car Garage. Recent Updates Include A High-efficiency Tankless Boiler And Hot Water Heater Installed In 2021, A New Expansion Tank In 2024, A Built-in Microwave Added In 2023, Gutter Guards, And Fresh Neutral Interior Paint Throughout Much Of The Home. Located In The Warwick Valley School District And Approximately 45 Miles From The George Washington Bridge, This Property Offers Easy Access To Major Highways, Hiking Trails, Golf Courses, Skiing, And Everything That Makes Hudson Valley Living So Appealing. With Its Walkable Village Location, Usable Yard Space, And Solid Updates, This Maple Avenue Home Is A Comfortable And Move-in-ready Opportunity In One Of Orange County’s Most Desirable Communities.welcome To The Timeless Charm Of This Beautifully Renovated 1929 Colonial Farmhouse In The Village Of Warwick, Ny, Ideally Located On Maple Avenue Just Moments From Downtown. Set On A Picturesque Half-acre With Mature Trees And Sweeping Lawns, This Inviting Home Offers The Rare Opportunity To Enjoy Classic Hudson Valley Character While Walking To Warwick’s Shops, Restaurants, Farmers Markets, Wineries, Breweries, And Seasonal Events.
| Location/Town | Warwick (Town) |
| Area/County | Orange County |
| Post Office/Postal City | Warwick |
| Prop. Type | Single Family House for Sale |
| Style | Colonial, Farmhouse |
| Tax | $11,873.00 |
| Bedrooms | 4 |
| Total Rooms | 10 |
| Total Baths | 3 |
| Full Baths | 3 |
| Year Built | 1929 |
| Basement | Full, Unfinished |
| Construction | Frame |
| Lot SqFt | 19,998 |
| Cooling | None |
| Heat Source | Baseboard, Natural G |
| Util Incl | Trash Collection Private |
| Property Amenities | As seen; all appliances, lighting. |
| Days On Market | 46 |
| Lot Features | Level |
| Parking Features | Detached, Driveway |
| Tax Assessed Value | 43000 |
| School District | Warwick Valley |
| Middle School | Warwick Valley Middle School |
| Elementary School | Park Avenue Elementary School |
| High School | Warwick Valley High School |
| Features | First floor full bath |
| Listing information courtesy of: Tuxedo Hudson Realty Corp | |