RealtyDepotNY
Cell: 347-219-2037
Fax: 718-896-7020



































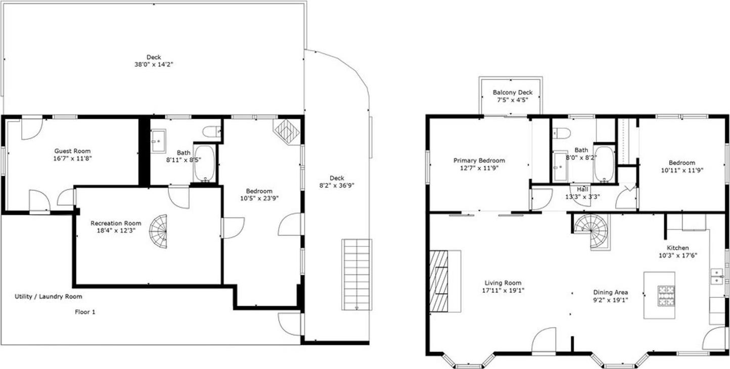
Welcome To Lake View Hideaway At 34 Overlook Road—a Proven, Income-producing Short-term Rental Perched Above Lake Paradise In The Heart Of The Catskills. This Renovated, Fully Furnished (optional) Property Is Already Operating As A Successful Year-round Airbnb, Making It An Exceptional Turnkey Opportunity For Investors Seeking Immediate Cash Flow With Upside. Set Back From The Road And Surrounded By Trees, The Home Offers The Privacy And Tranquil Setting Today’s Short-term Rental Guests Crave. Inside, Rustic-chic Design Elements—wide-plank Barnwood Floors, Sliding Barn Doors, And A Wood-burning Fireplace—create A Warm, Farmhouse Aesthetic That Photographs Beautifully And Performs Well On Booking Platforms. The Main Level Features A Spacious Living Room Anchored By A Floor-to-ceiling Brick Fireplace, A Large Dining Area Ideal For Hosting Groups Of 10+, And A Chef’s Kitchen With Butcher-block Countertops, Stainless Steel Appliances, And An Island Perfect For Gathering. Sliding Barn Doors Open To A Balcony With Lake And Mountain Views—an Instant Guest Favorite. This Level Also Includes A Bedroom And A Fully Tiled Bathroom With A Soaking Tub. The Mostly Finished Lower Level Adds Significant Rental Flexibility And Sleeping Capacity. Accessible From Both Inside And Multiple Exterior Entrances, It Includes A Recreation Or Game Room, A Large Bedroom With A Cozy Bed Nook, Pellet Stove, Sitting Area, And Deck Access, Plus An Additional Guest Room And A Second Full Bath. This Layout Is Ideal For Maximizing Occupancy And Guest Comfort. Recent Improvements Include A New Roof, Renovated Bathrooms, And A Re-sealed Deck, Ensuring Low Near-term Maintenance. The Outdoor Space Is Designed For Guest Enjoyment, With Room For Grilling, Lounging, And Evenings Around The Firepit Under The Stars. Located Within Catskill Park And Under Two Hours From Nyc, The Home Is Close To The Neversink And Rondout Reservoirs, Willowemoc And Sundown Wild Forests, Peekamoose Blue Hole, And World-class Fishing, Hiking, And Outdoor Recreation. The Neversink General Store And Deli Are Just Minutes Away, Adding Convenience And Charm For Guests. Move-in And Airbnb-ready, With The Option To Purchase Fully Furnished, This Property Works Equally Well As A High-performing Short-term Rental, Weekend Escape, Or Full-time Residence. Invest Where Guests Already Love To Stay—schedule Your Showing Today.
| Location/Town | Neversink |
| Area/County | Sullivan County |
| Post Office/Postal City | Woodbourne |
| Prop. Type | Single Family House for Sale |
| Style | Raised Ranch |
| Tax | $2,418.00 |
| Bedrooms | 3 |
| Total Rooms | 8 |
| Total Baths | 2 |
| Full Baths | 2 |
| Year Built | 1950 |
| Basement | Full, Partially Finished, Walk-Out Access |
| Construction | Frame, Vinyl Siding |
| Lot SqFt | 16,117 |
| Cooling | None |
| Heat Source | Forced Air, Propane |
| Util Incl | Cable Connected, Electricity Connected |
| Days On Market | 1 |
| Parking Features | Driveway |
| Tax Assessed Value | 2750 |
| School District | Tri Valley |
| Middle School | Tri-Valley Secondary School |
| Elementary School | Tri-Valley Elementary School |
| High School | Tri-Valley Secondary School |
| Features | First floor bedroom, first floor full bath |
| Listing information courtesy of: Land and Water Realty LLC | |